13/16
Paylaş
Resmi Orjinal Boyutunda Göster
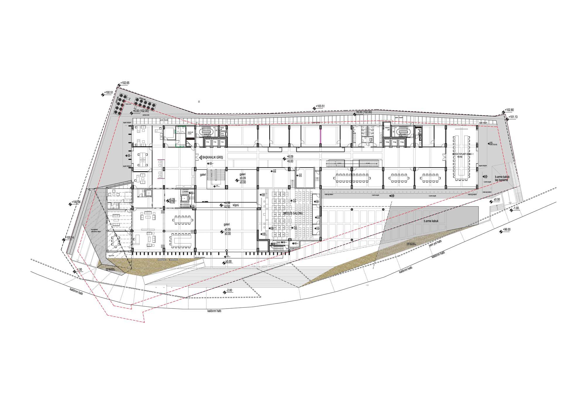
Şişli Belediyesi Hizmet Binası
Project Location: Şişli, İstanbul
Project Office: Boran Ekinci Mimarlık, Hakan Dalokay Mimarlık
Project Type: Belediye Hizmet Binası
Proje Tipi Grubu: Kamu
Tasarım Ekibi: Hakan Dalokay, Boran Ekinci
Employer: Şişli Belediyesi
Yardımcı: Yeliz Tekin Çimen, Deniz Okten, Evren Öztürk, Sasan Sahafi
Photography: Cemal Emden
Project Start Date: 2010
Project End Date: 2011
Construction Start Date: 2011
Construction End Date: 2013
Building Plot Area: 5.200 m2
Total Construction Area: 28.750 m²