12/13
Paylaş
Resmi Orjinal Boyutunda Göster
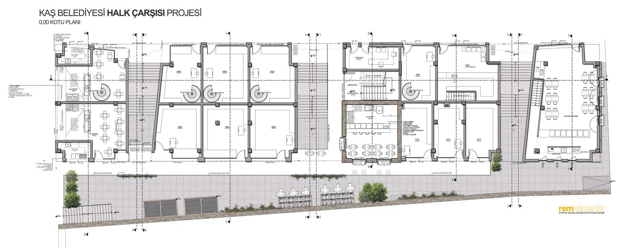
Kaş Halk Çarşısı
Project Location: Kaş, Antalya
Project Office: Rem Mimarlık
Project Type: Housing Complex, Offices, Store / Showroom, Restaurant / Café / Bar
Proje Tipi Grubu: Konut, Commercial
Tasarım Ekibi: Zeynep Esengil Ceylan
Employer: Kaş Belediyesi
Structural Project: Akın Akıncı
Mechanical Project: Hasan Kalkan
Electrical Project: Nevzat Düvenci
Project Start Date: 2012
Construction Start Date: 2013
Total Construction Area: 2,000 m²