17/21
Paylaş
Resmi Orjinal Boyutunda Göster
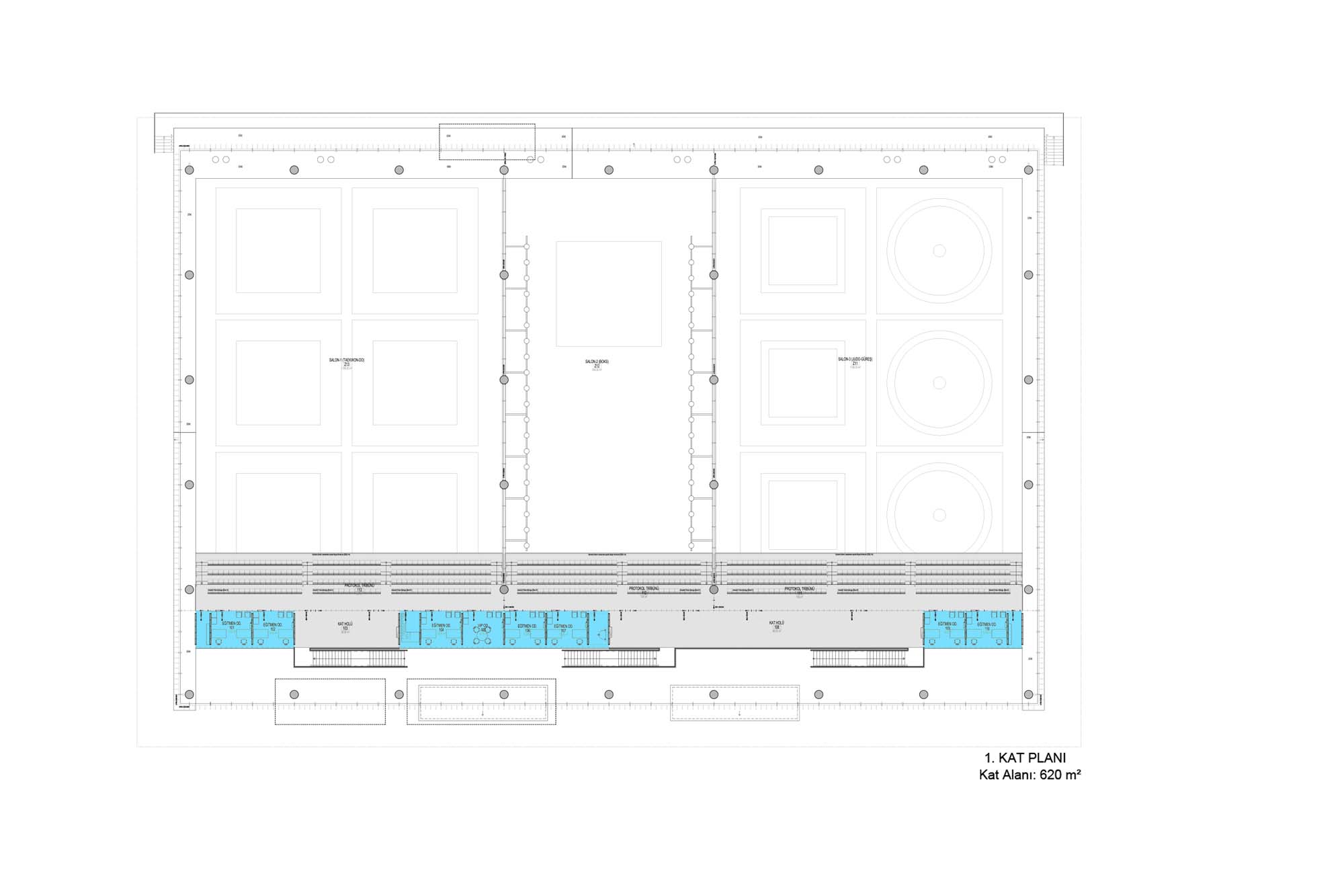
Kara Harp Okulu Savunma Sporları Çalışma Alanı
Proje Yeri: Ankara, Çankaya
Proje Ofisi: FREA, SCRA Mimarlık
Proje Tipi: Spor Salonu
Proje Tipi Grubu: Rekreasyon / Spor
Tasarım Ekibi: Fatih Yavuz, Ömer Emre Şavural, Seden Cinasal Avcı, Ramazan Avcı
İşveren: Havelsan, SSM
Yardımcı: Esra Nur Barakat, Merve Görkem, Betül Dönmez
Ana Yüklenici: Kolin İnşaat
Peyzaj Mimarlığı: Propey Peyzaj
Aydınlatma Projesi: MCC Aydınlatma
Statik Projesi: Kınacı Mühendislik
Mekanik Projesi: Bahri Türkmen Mühendislik
Elektrik Projesi: Ovacık Mühendislik
Altyapı Projesi: Birim Altyapı
Yangın Tahliye Projesi: Karina Danışmanlık
Proje Başlangıç Yılı: 2014
Proje Bitiş Yılı: 2014
İnşaat Başlangıç Yılı: 2014
İnşaat Bitiş Yılı: 2015
Arsa Alanı: 10,030 m2
Toplam İnşaat Alanı: 5,220 m2