32/32
Paylaş
Resmi Orjinal Boyutunda Göster
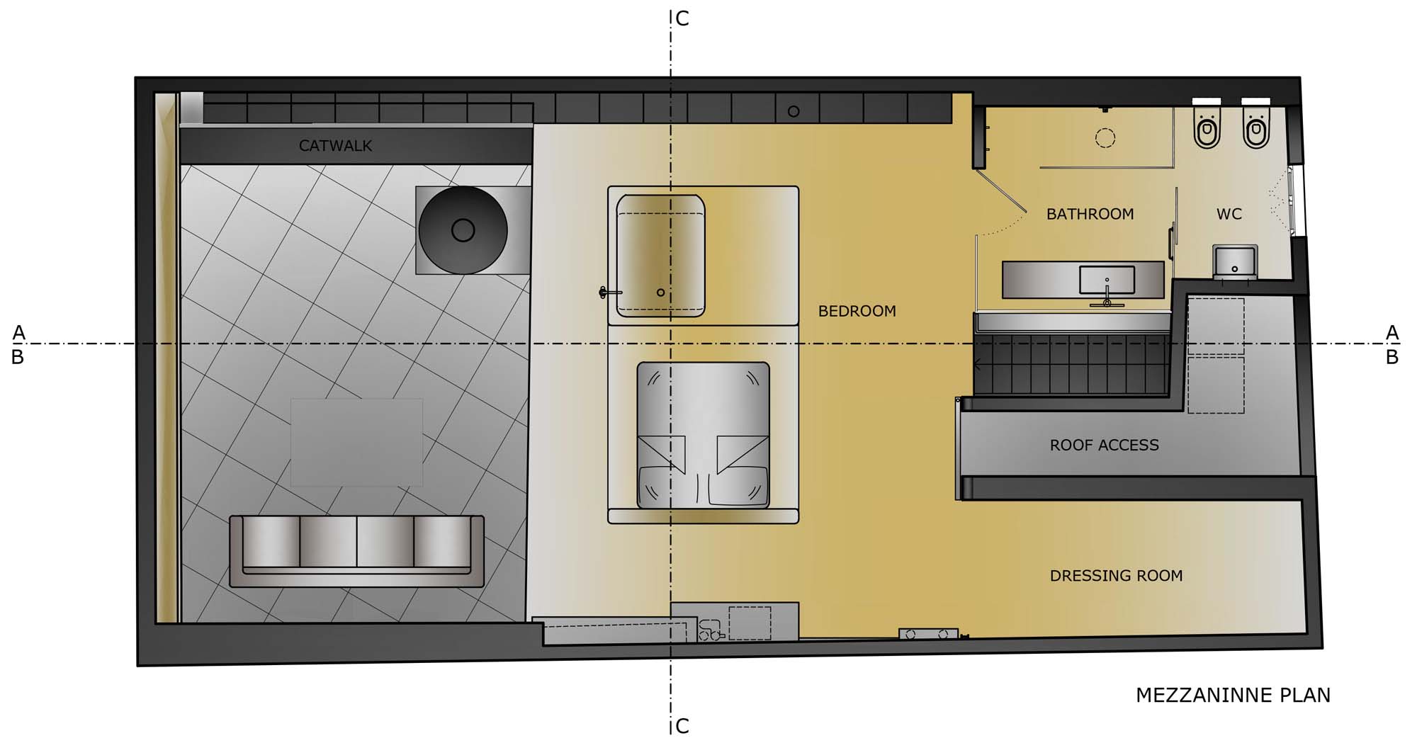
Karaköy Loft
Project Location: Beyoğlu, İstanbul
Project Office: Ofist
Project Type: Apartment
Proje Tipi Grubu: Konut
Tasarım Ekibi: Yasemin Arpaç, Sabahattin Emir
Mechanical Project: DSM Mühendislik
Electrical Project: Birtes Elektrik
Photography: Koray Erkaya
Project End Date: 2011
Construction End Date: 2012
Total Construction Area: 185 m2