21/22
Paylaş
Resmi Orjinal Boyutunda Göster
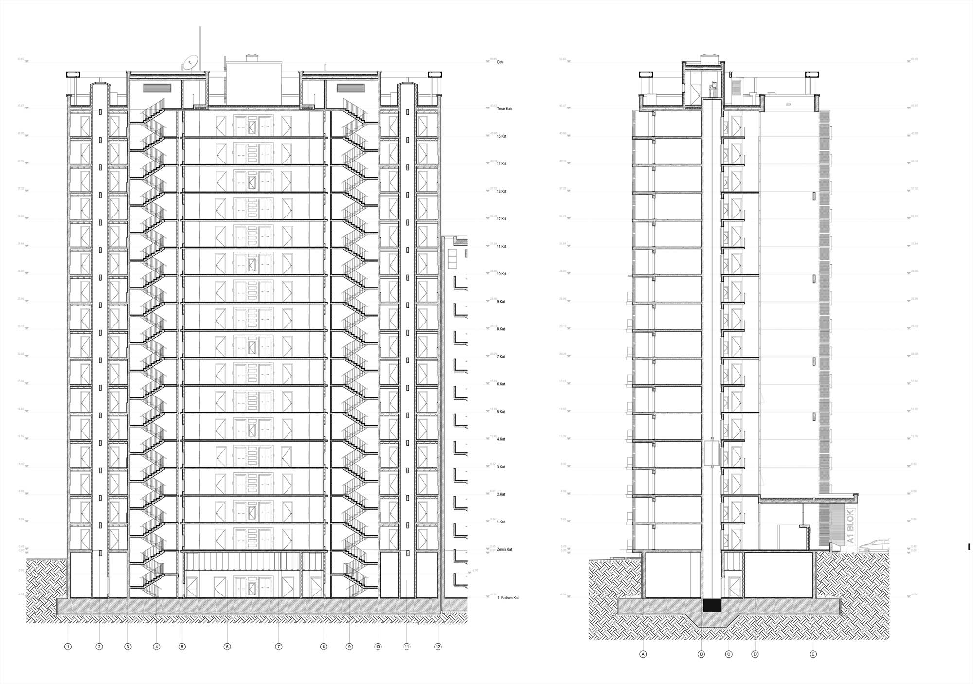
OYAK Eryaman Konutları
Project Location: Etimesgut, Ankara
Project Office: MuuM
Project Type: Housing Complex
Proje Tipi Grubu: Konut
Tasarım Ekibi: Murat Aksu, Umut İyigün, Hande Aydın Yarımbıyık, Yury Startsev, Eda Kevser Gür, Aycan İşcan, Osman Naskali, Okan Akben, Ersin Özdamar, Günay Çalışkan, Burak Sülünbaz
Employer: Oyak İnşaat
Ana Yüklenici: Oyak İnşaat
Peyzaj Mimarlığı: YZR Peyzaj
Structural Project: Yapı Akademisi
Mechanical Project: Gürson Mühendislik
Electrical Project: Gürson Mühendislik
Altyapı Projesi: YZR Peyzaj
Photography: Fethi Mağara
Project Start Date: 2011
Project End Date: 2012
Construction Start Date: 2011
Construction End Date: 2015
Building Plot Area: 93,785 m2
Total Construction Area: 31,835 m2