29/37
Paylaş
Resmi Orjinal Boyutunda Göster
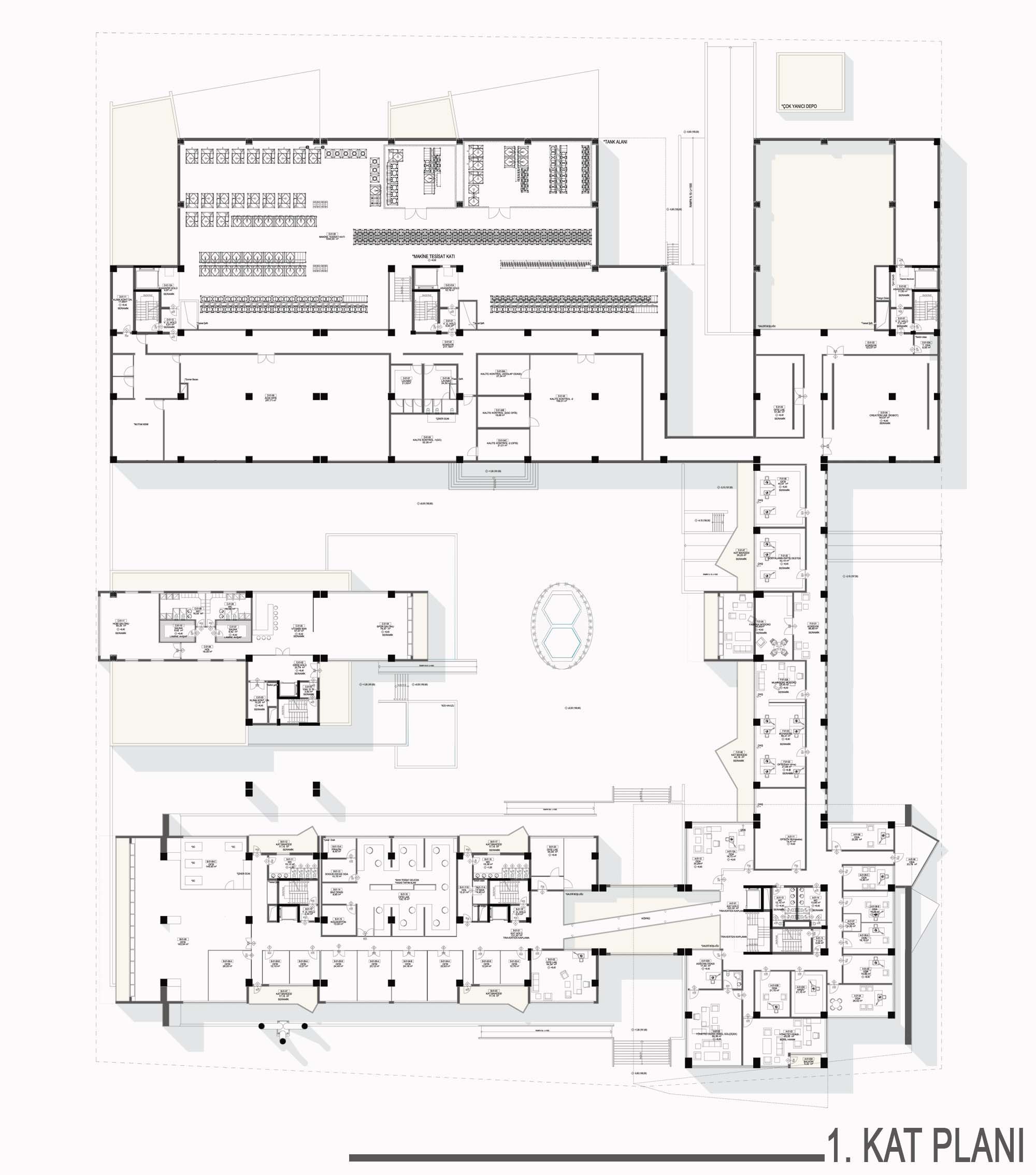
Gülçiçek Kimya ve Uçan Yağlar Fabrika ve Yönetim Kompleksi
Proje Yeri: Gebze, Kocaeli (İzmit)
Proje Ofisi: Atölyehane Mimarlık
Proje Tipi: Fabrika , Ofis
Proje Tipi Grubu: Endüstriyel
Tasarım Ekibi: Kiraz Çifcibaşı Durna, Mevlüt Durna
İşveren: Gülçiçek Kimya ve Uçanyağlar
Ana Yüklenici: Yapıtek İnşaat
Statik Projesi: Varol İnşaat
Mekanik Projesi: Er Mühendislik, Boyut Proje
Elektrik Projesi: EKC Elektrik
Tesisat Projesi: FRICKE Abfülltechnik
Çelik Projesi: Varol İnşaat
Mimari Mesleki Kontrollük: Kiraz Çifcibaşı Durna
Şantiye Yöneticisi: Mevlüt Durna
Proje Başlangıç Yılı: 2011
Proje Bitiş Yılı: 2012
İnşaat Başlangıç Yılı: 2012
İnşaat Bitiş Yılı: 2016
Arsa Alanı: 19,385 m2
Toplam İnşaat Alanı: 30,807 m2