8/24
Paylaş
Resmi Orjinal Boyutunda Göster
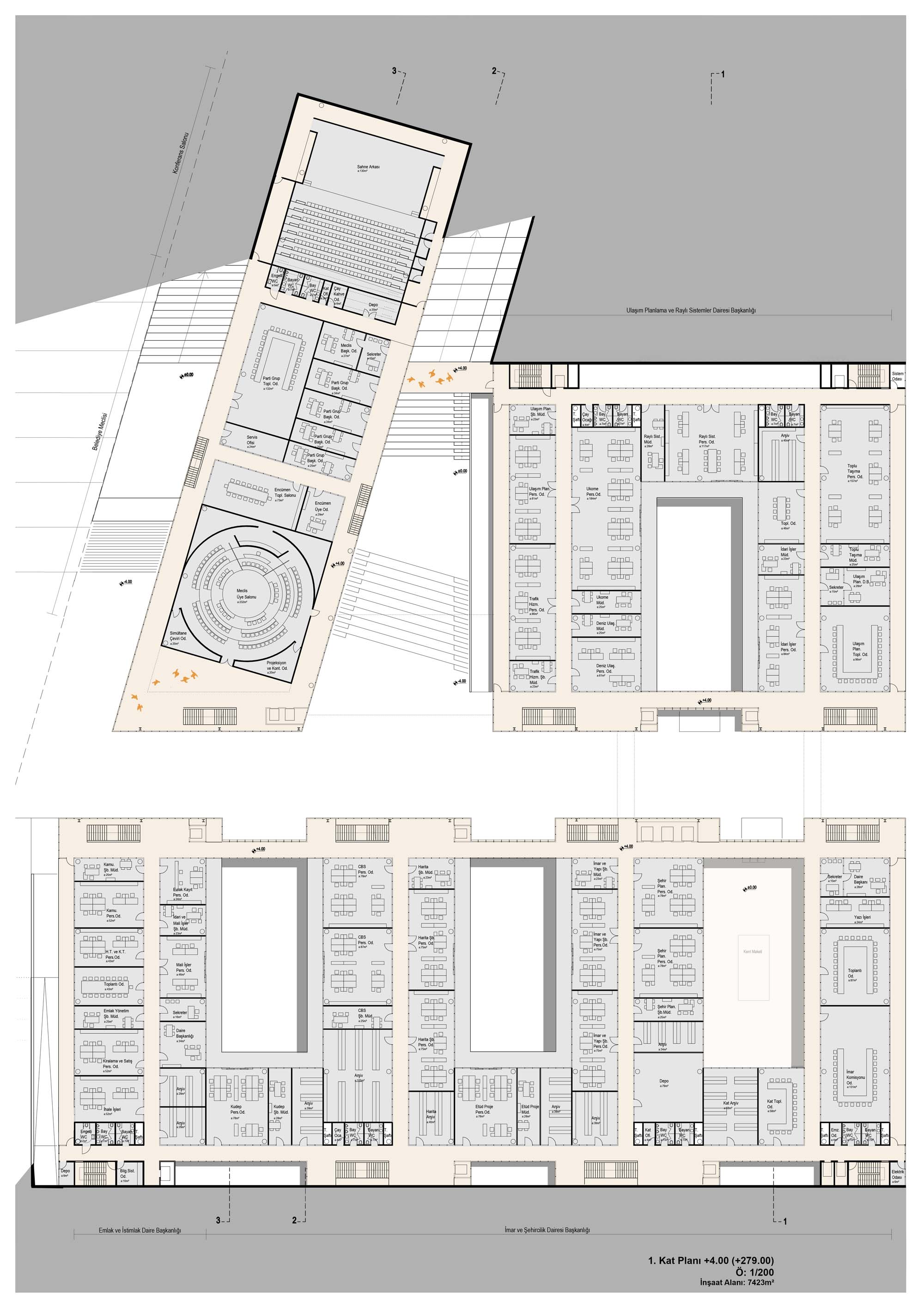
Katılımcı, Balıkesir Büyükşehir Belediyesi Hizmet Binası Yarışması
Project Location: Balıkesir
Project Office: M artı D Mimarlık
Project Type: Belediye Hizmet Binası
Proje Tipi Grubu: Katılımcı
Tasarım Ekibi: Metin Kılıç, Dürrin Süer, Deniz Güner, Ali Can Helvacıoğlu
Consultant: İpek Kaştaş Uzun, Cemal Coşak
Yardımcı: Gizem Yazıcı, Engin Yavuz, Abdurrahman Çoban, Diclehan Bekir