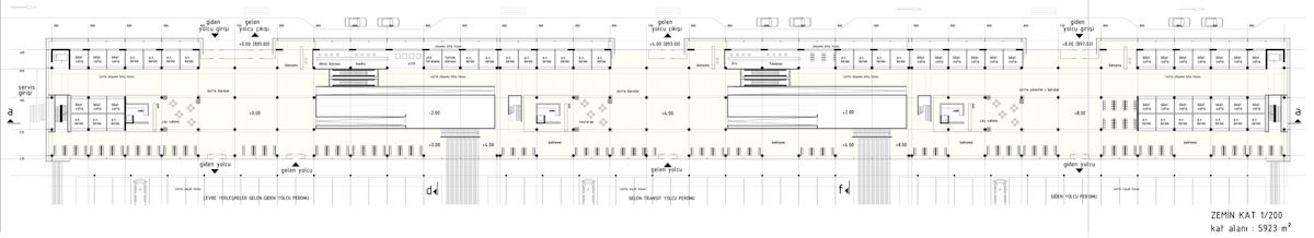
Zemin Kat Planı
10/17
Paylaş
Resmi Orjinal Boyutunda Göster
Uşak Şehirlerarası Terminal Kompleksi Yarışması, 4. Mansiyon
Proje Yeri: Uşak
Proje Tipi: Kentsel Tasarım, Otogar
Proje Tipi Grubu: 4. Mansiyon
Tasarım Ekibi: Kenan Bilhan, Ebru Can Bilhan
Danışman: Kebir Bilhan, Halime Demir, Sevinç Gündoğdu, Yüksel Konkan