33/37
Paylaş
Resmi Orjinal Boyutunda Göster
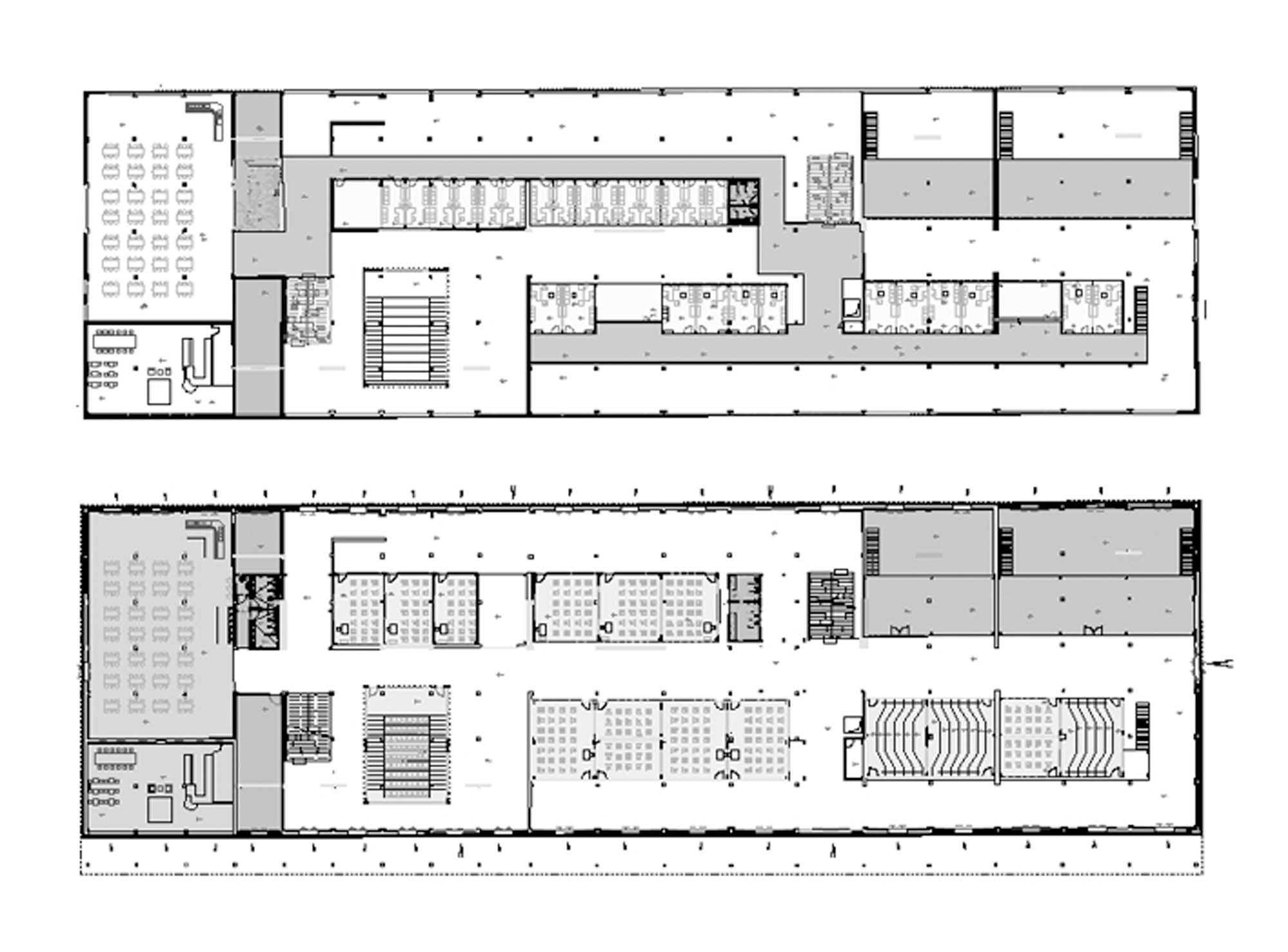
AGÜ Sümer Kampüsü Büyük Ambar Binası
Project Location: Kayseri, Kocasinan
Project Type: Higher Education Building
Proje Tipi Grubu: Eğitim
Tasarım Ekibi: Burak Asiliskender, Nilüfer Yöney
Employer: Abdullah Gül Üniversitesi (AGÜ)
Consultant: Ayşegül Özer
Yardımcı: İlknur Kuşkaya
Ana Yüklenici: MEFA
Structural Project: Koray Aydın
Mechanical Project: Ziya Derin, Umut Aydın
Electrical Project: Özgür Çökük, Umut Aydın
Plumbing Project: Ziya Derin, Umut Aydın
Çelik Projesi: Koray Aydın
Altyapı Projesi: AGÜ Yapı İşleri ve Teknik Daire Başkanlığı
Photography: Burak Asiliskender, Nilüfer Yöney
Architectural Supervision: AGÜ Yapı İşleri ve Teknik Başkanlığı
Construction Site Manager: Yücel Çelik, MEFA
Project Start Date: 2014
Project End Date: 2014
Construction Start Date: 2014
Construction End Date: 2016
Building Plot Area: 6,000 m²
Total Construction Area: 9,000 m²