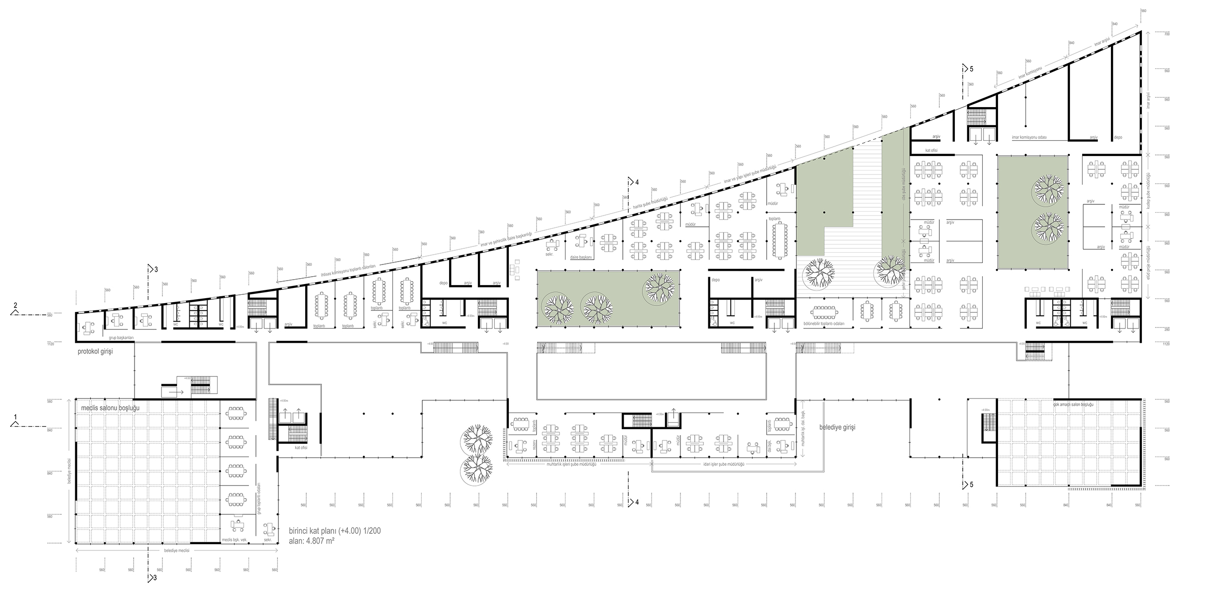
1. Kat Planı
11/18
Paylaş
Resmi Orjinal Boyutunda Göster
1. Ödül (Kolektif Mimarlar, Buda Mimarlık)
Proje Yeri: Balıkesir
Proje Ofisi: Kolektif Mimarlar, Buda Mimarlık
Proje Tipi: Belediye Hizmet Binası
Proje Tipi Grubu: 1. Ödül
Tasarım Ekibi: Barış Demir, Sıddık Güvendi, Burak Pelenk, Gökşen Ezgi Boz, Murat Akyüz
Yardımcı: Damla İçyer, Betül Yılmaz, Ebru Elif Aydın, Merve Eflatun, Oğuzhan Yılmaz, Ahmet Yaymanoğlu