14/21
Paylaş
Resmi Orjinal Boyutunda Göster
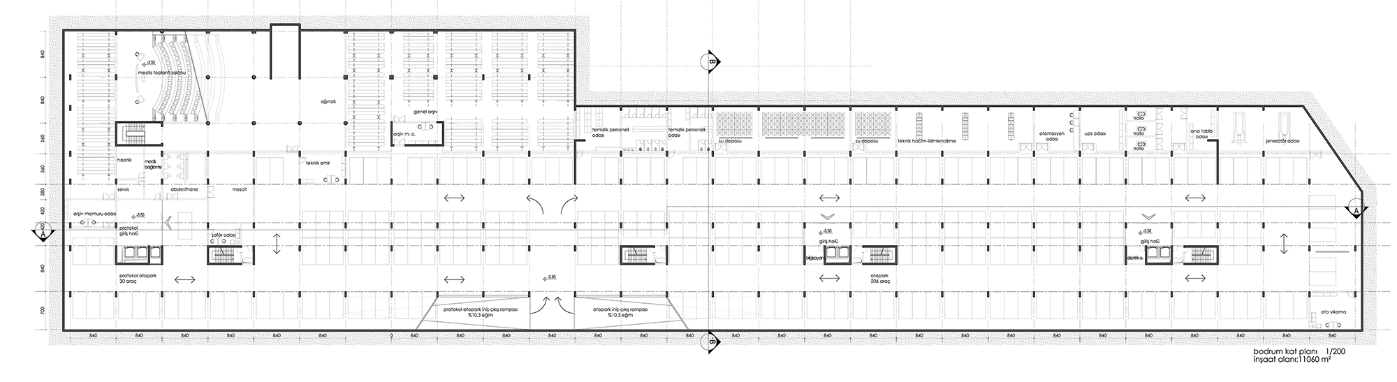
4. Mansiyon, Balıkesir Büyükşehir Belediyesi Hizmet Binası Yarışması
Proje Yeri: Balıkesir
Proje Ofisi: Centee
Proje Tipi: Belediye Hizmet Binası
Proje Tipi Grubu: 4. Mansiyon
Tasarım Ekibi: Ata Kurt, Selen Sarıkulak Bal, Emre Bal, İrfan Ertiş
Danışman: Mehmet Zafer Kınacı, Sercan Cihanbilir
Yardımcı: Yunus Özdemir, Doğancan Demir