31/32
Paylaş
Resmi Orjinal Boyutunda Göster
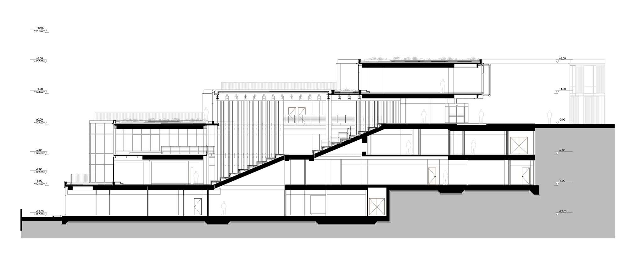
Özyeğin Üniversitesi Öğrenci Merkezi
Proje Ofisi: BG Architects
Tasarım Ekibi: Roger Klein, Bülent Ergin Güngör, Andreas Buettner, John DaCruz, Greg Taylor, Chris Shusta, Barış Başat, Emre Gürsoy, Nuran Erdoğan, Can Dağarslanı, Şila Siva, Selin Ezanoglu, Veciye Öztürk, Cenk Aykut
İşveren: Özyeğin Üniversitesi
Danışman: Altensis, NA Lightstyle, Proses Mühendislik, Makpa
Ana Yüklenici: Berko İnşaat
Peyzaj Mimarlığı: DS Mimarlık
İç Mekan Projesi: BG Architects
Proje Yöneticisi: Fiba
Konsept Tasarımı: ARK-itecture
Statik Projesi: Emir Mühendislik
Mekanik Projesi: Civa Mühendislik
Elektrik Projesi: Latek İnşaat Elektrik Proje
Altyapı Projesi: Proses Mühendislik
Akustik Danışmanı: PROPLAN Proje Yönetim
Yangın Güvenlik Danışmanı: Abdurrahman Kılıç, Kazım Beceren
İnşaat Bitiş Yılı: 2013
Toplam İnşaat Alanı: 22,000 m²