21/21
Paylaş
Resmi Orjinal Boyutunda Göster
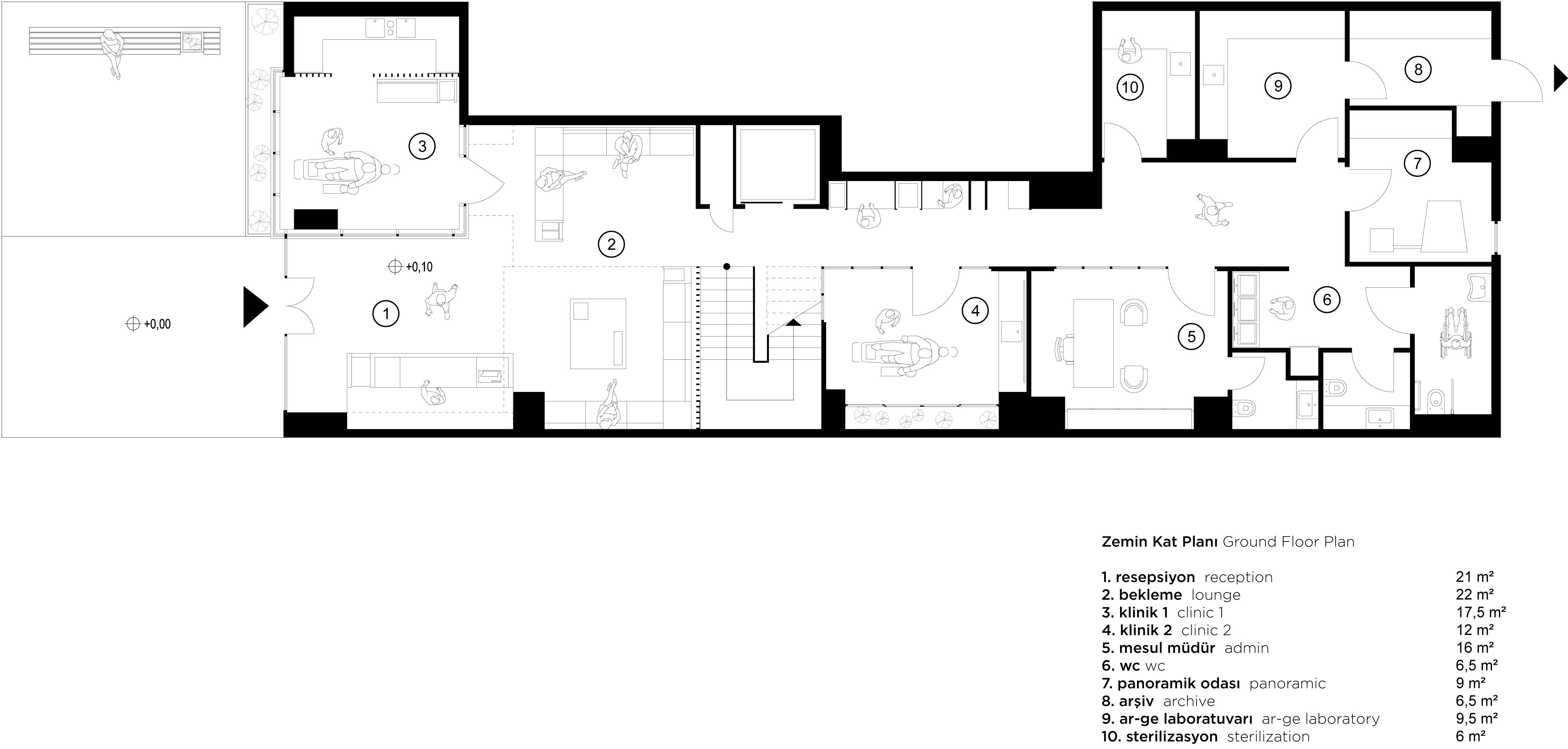
Gülüş Akademisi Ağız ve Diş Sağlığı Polikliniği
Proje Yeri: Gaziantep
Proje Ofisi: Slash Architects, İpek Baycan Architects
Proje Tipi: Hastane / Poliklinik
Proje Tipi Grubu: Sağlık
Tasarım Ekibi: İpek Baycan Magriso, Şule Ertürk
İşveren: Selim Günsoy
Ana Yüklenici: Yüksek Yapı ve İnsaat
Fotoğraf: ALTKAT Architectural Photography
Proje Başlangıç Yılı: 2015
Proje Bitiş Yılı: 2015
İnşaat Başlangıç Yılı: 2015
Toplam İnşaat Alanı: 350 m²