7/17
Paylaş
Resmi Orjinal Boyutunda Göster
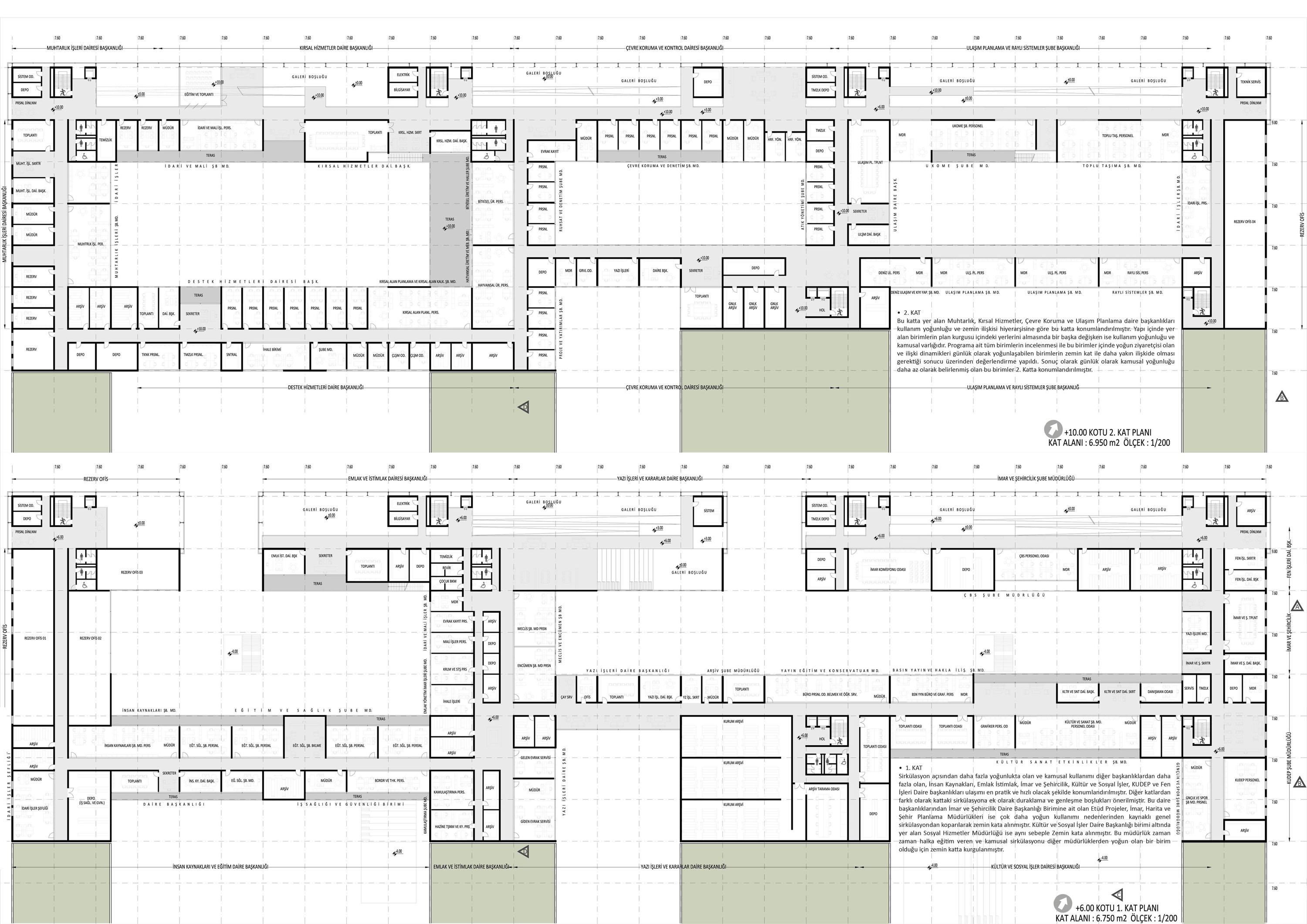
Katılımcı (İkikerebir), Balıkesir Büyükşehir Belediyesi Hizmet Binası Yarışması
Proje Yeri: Balıkesir
Proje Ofisi: İkikerebir
Proje Tipi: Belediye Hizmet Binası
Proje Tipi Grubu: Katılımcı
Tasarım Ekibi: Kutlu İnanç Bal, Hakan Evkaya, Cansu Dinç