13/26
Paylaş
Resmi Orjinal Boyutunda Göster
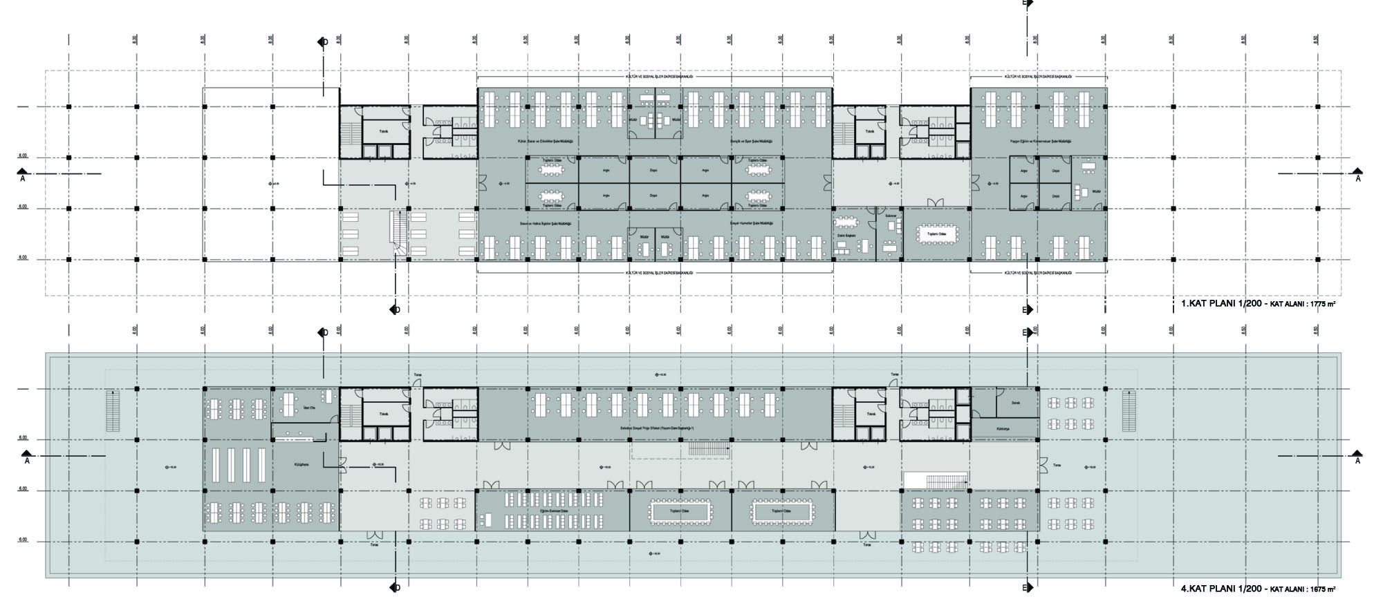
Katılımcı (Ulaş Mimarlık), Balıkesir Büyükşehir Belediyesi Hizmet Binası Yarışması
Proje Yeri: Balıkesir
Proje Ofisi: Ulaş Mimarlık
Proje Tipi: Belediye Hizmet Binası
Proje Tipi Grubu: Katılımcı
Tasarım Ekibi: Ulaş Kelle, Şafak Delice
Danışman: Selçuk Susur, Zeynep Tarcan
Yardımcı: Şima Coşkun, Zeynep Karaer