79/94
Paylaş
Resmi Orjinal Boyutunda Göster
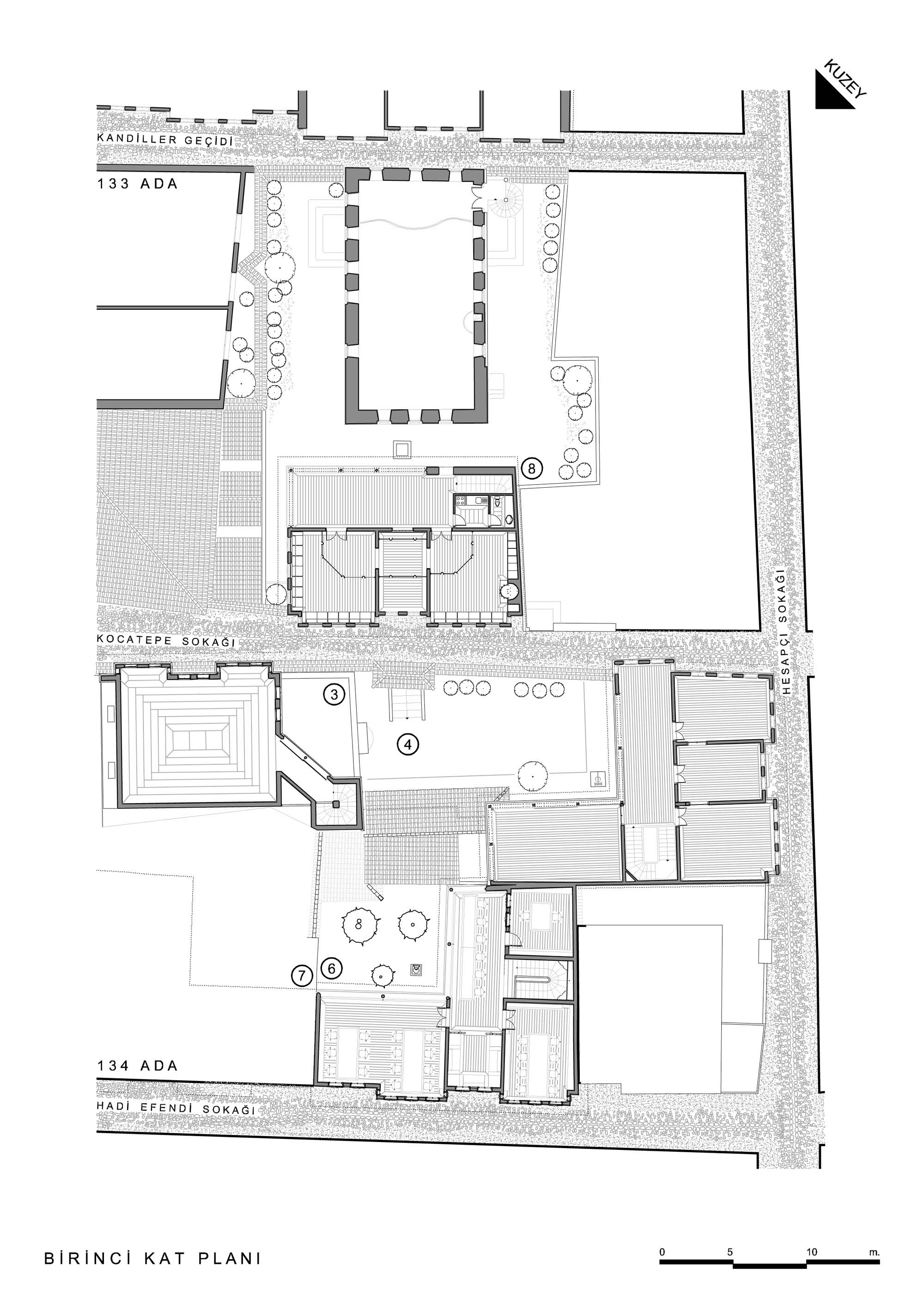
Akdeniz Medeniyetleri Araştırma Enstitüsü
Proje Yeri: Muratpaşa, Antalya
Proje Ofisi: Yenilem Mimarlık
Proje Tipi: Diğer Eğitim Yapıları
Proje Tipi Grubu: Eğitim
Tasarım Ekibi: Sinan Genim
Mimari Proje Ekibi: Ahmet Ergelen, Gülay Mevlevi, Neşe Zaloğlu, Belma Barış Kurtel, Memet Charum, Ferda Masatlıoğlu, Pelin Sürmeli, Özgen Esen, Hülya Çavuşoğlu, Begüm Humaçoğlu, Elif Özmener, Damla Katuk, Merve Ateş, İrem Burkucu
İşveren: Suna Kıraç, İnan Kıraç
Ana Yüklenici: Kar İnşaat, Kıraça
Proje Yöneticisi: Sinan Genim
Uygulama Projesi: Sinan Genim, Belma Barış Kurtel
Aydınlatma Projesi: Tepta Aydınlatma
Statik Projesi: Fonksiyon Mühendislik, Attila Çaydamlı
Mekanik Projesi: Hasel - Selim Evyapan
Elektrik Projesi: Erol Çığırgan, Hüseyin Öztürk, Dasel, Korkut Daşdemir
Tesisat Projesi: Hasel, Selim Evyapan
Altyapı Projesi: Hasel, Selim Evyapan
Akustik Projesi: Bose, Mustafa Şahin
Fotoğraf: Cemal Emden
Mimari Mesleki Kontrollük: Sinan Genim
Proje Başlangıç Yılı: 1992, 2014
İnşaat Başlangıç Yılı: 1992
İnşaat Bitiş Yılı: 2014
Arsa Alanı: 1,540 m2