21/22
Paylaş
Resmi Orjinal Boyutunda Göster
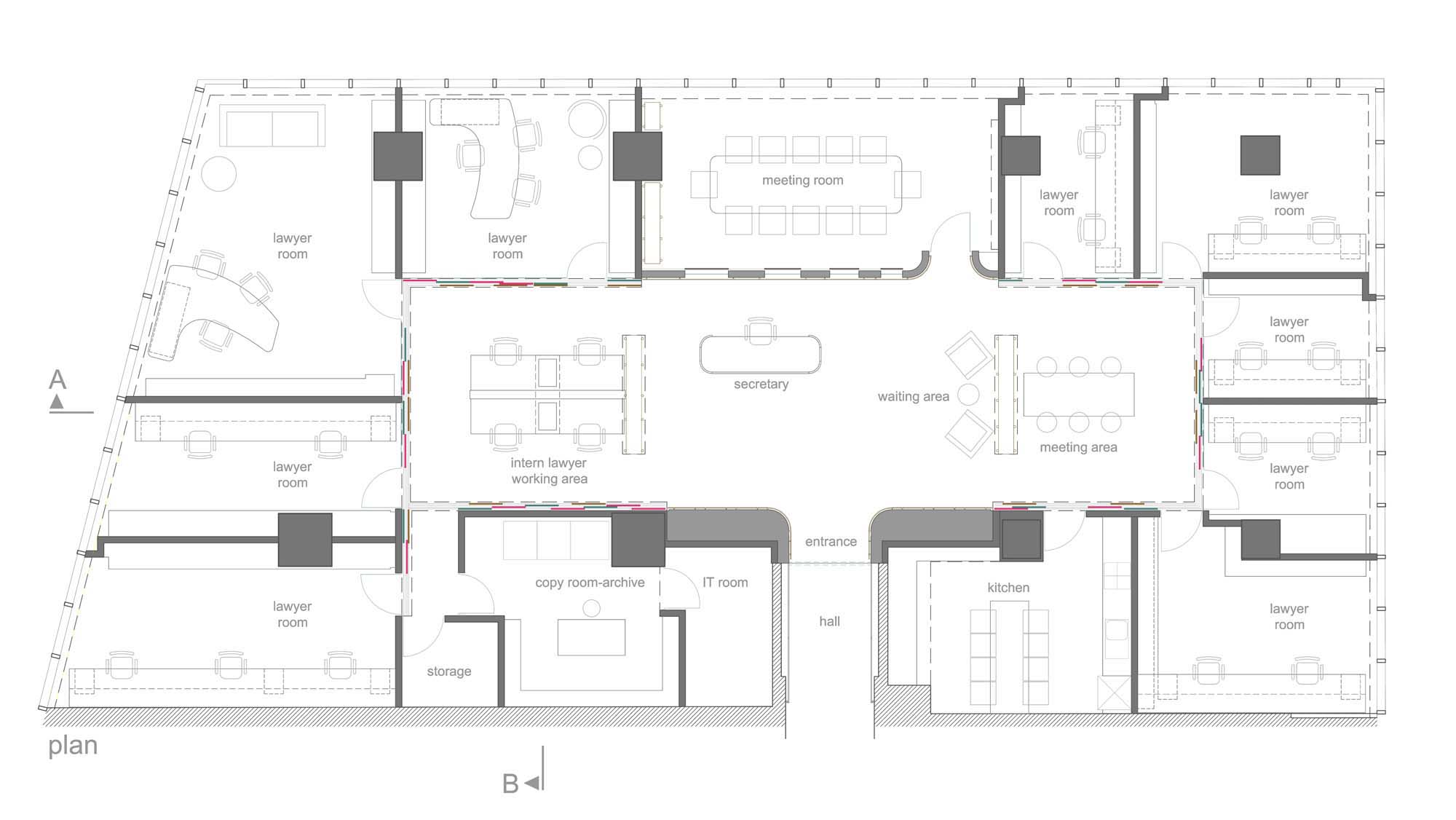
Gün Partners Ankara Ofisi
Project Location: Ankara, Çankaya
Project Office: Zemberek Tasarım
Project Type: Offices
Proje Tipi Grubu: Commercial
Tasarım Ekibi: Başak Emrence, Şafak Emrence, Ece Ilgın Avcı, Cansu Sezer, Pınar Sünbül
Employer: Gün + Partners Avukatlık Bürosu
Photography: Şafak Emrence
Project Start Date: 2015
Project End Date: 2015
Construction Start Date: 2016
Construction End Date: 2016
Total Construction Area: 320 m²