15/18
Paylaş
Resmi Orjinal Boyutunda Göster
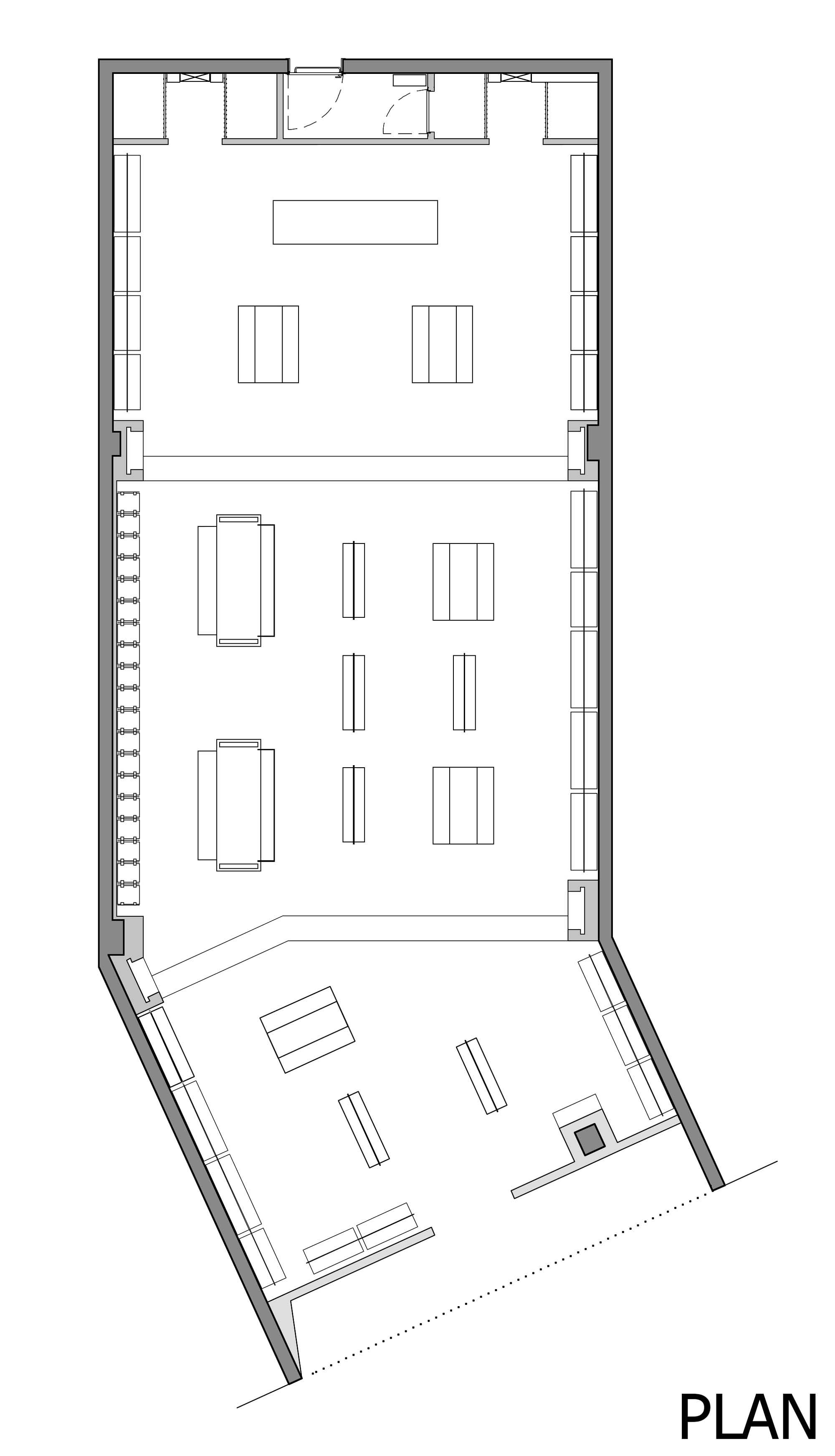
Bulur Textile Moscow Shop
Proje Yeri: Moskova, Rusya
Proje Ofisi: Zemberek Tasarım
Proje Tipi: Mağaza / Showroom
Proje Tipi Grubu: Ticari
Tasarım Ekibi: Başak Emrence, Şafak Emrence
İşveren: Bulur Tekstil
Fotoğraf: Şafak Emrence
Proje Başlangıç Yılı: 2011
İnşaat Bitiş Yılı: 2011
Toplam İnşaat Alanı: 200 m2