37/43
Paylaş
Resmi Orjinal Boyutunda Göster
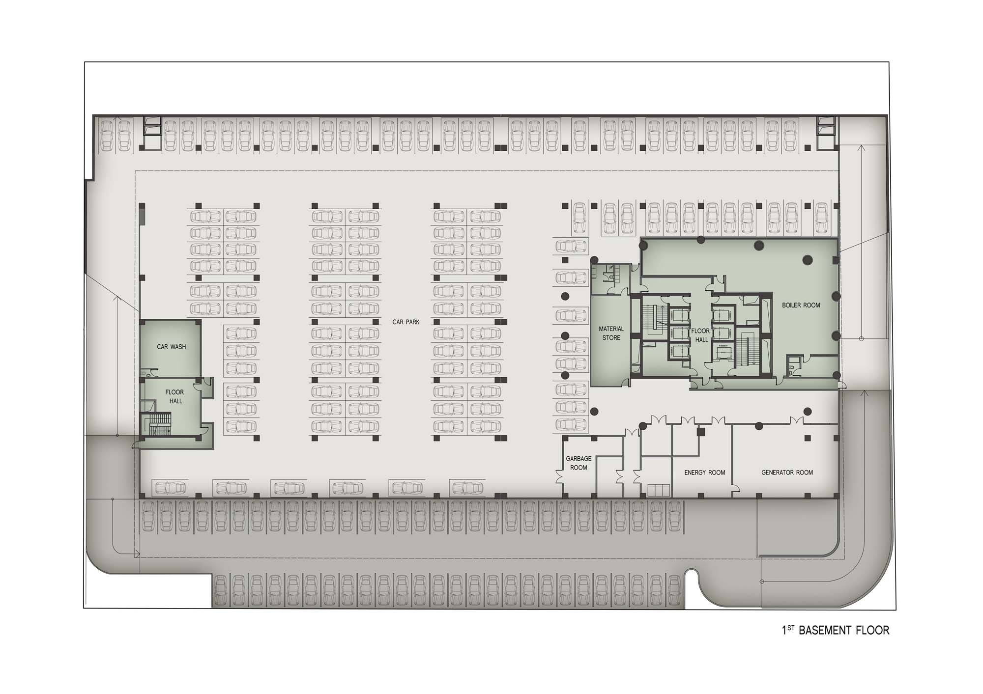
Regnum Sky Tower
Proje Yeri: Çankaya, Ankara
Proje Ofisi: MSA Mimarlık
Proje Tipi: Ofis
Proje Tipi Grubu: Ticari
Tasarım Ekibi: Mustafa Selçuk, Erhan Tozkoparan, Aykut Yıldırım, Tarık Mermer
İşveren: Op-Grup Enerji İnşaat
Ana Yüklenici: Op-Grup Enerji İnşaat
Peyzaj Mimarlığı: M Design
İç Mekan Projesi: Profit Neşe Güne
Proje Yöneticisi: Kerem Önder
Statik Projesi: Yüksek Proje
Mekanik Projesi: OTM Mühendislik
Elektrik Projesi: Ovacık Mühendislik
Fotoğraf: Mustafa Selçuk
Proje Başlangıç Yılı: 2013
Proje Bitiş Yılı: 2014
İnşaat Başlangıç Yılı: 2015
İnşaat Bitiş Yılı: 2016
Arsa Alanı: 8,401 m2
Toplam İnşaat Alanı: 51.000 m²