15/23
Paylaş
Resmi Orjinal Boyutunda Göster
2. Mansiyon
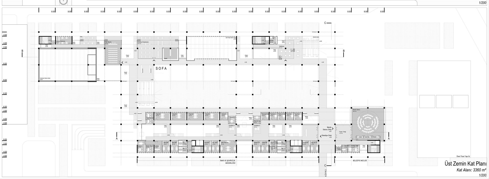
Project Location: Aydın
Project Office: OfficePAN Mimarlık
Project Type: Belediye Hizmet Binası
Proje Tipi Grubu: 2. Mansiyon
Tasarım Ekibi: Cihan Sevindik, Zeynep Canan Aksu
Consultant: Güney Uyaroğlu, Ceyda Özbilen, Melih Sayı, Zair Gezmen
Yardımcı: Fatih Mehmet İpek, Ezgi Atalayın