7/7
Paylaş
Resmi Orjinal Boyutunda Göster
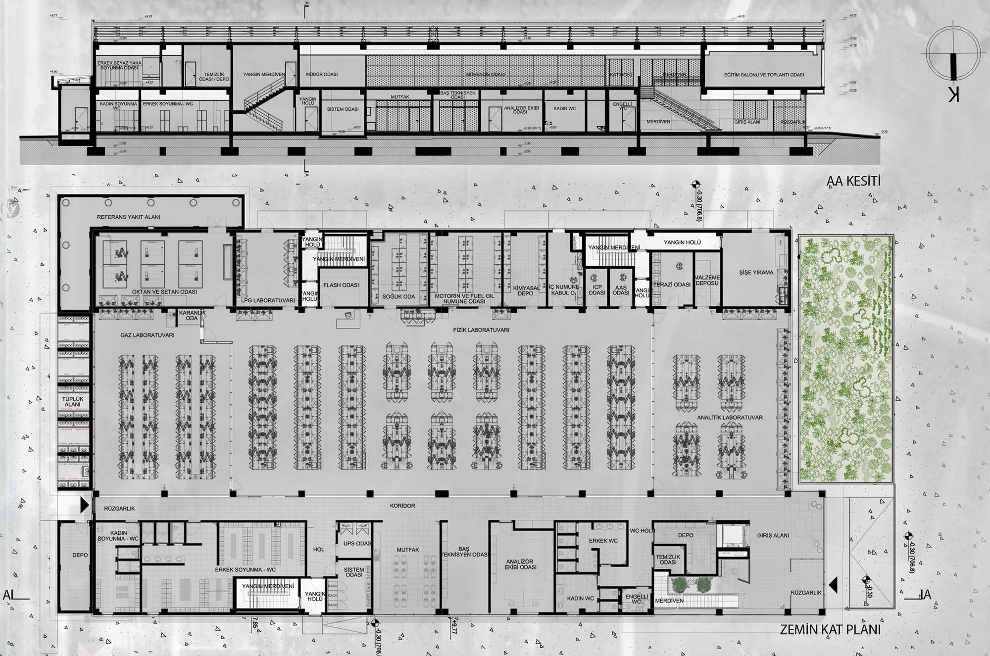
Tüpraş Kırıkkale Rafinerisi Laboratuvar ve Ofis Binası
Proje Yeri: Kırıkkale
Proje Ofisi: Pronil Mimarlık
Proje Tipi: Ofis, Diğer Endüstri Yapıları
Proje Tipi Grubu: Endüstriyel
Tasarım Ekibi: Tuğçe Darcan, Mert Civan, Cansın Özer
İşveren: TÜPRAŞ
Proje Yöneticisi: Nilüfer Çiçek
Statik Projesi: Tuna Proje
Mekanik Projesi: MEC Proje
Elektrik Projesi: RT Proje
Proje Başlangıç Yılı: 2016
Proje Bitiş Yılı: 2016
Arsa Alanı: 4,500 m²
Toplam İnşaat Alanı: 3,205 m²