4/4
Paylaş
Resmi Orjinal Boyutunda Göster
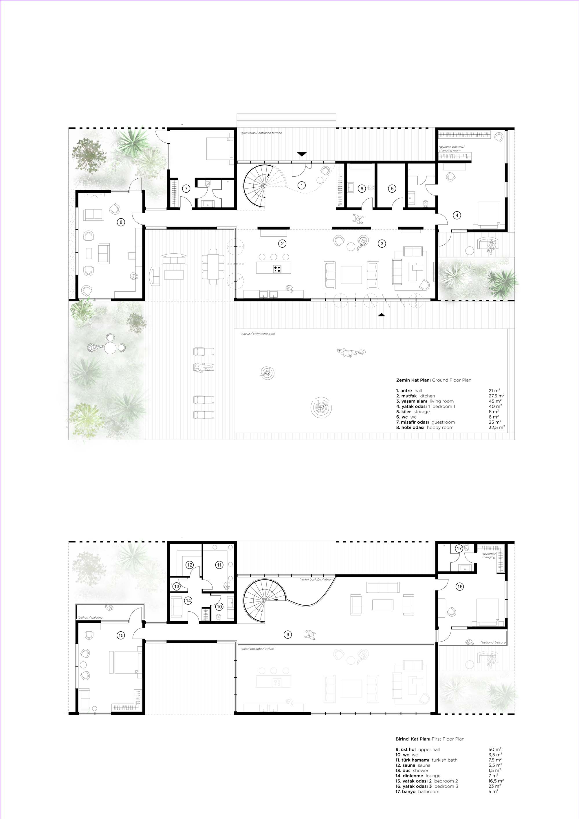
Akçakoca Tatil Evi
Proje Yeri: Düzce, Akçakoca
Proje Ofisi: Slash Architects
Proje Tipi: Tek Ev / Villa
Proje Tipi Grubu: Konut
Tasarım Ekibi: Şule Ertürk
İşveren: Yelda Berksoy
Proje Başlangıç Yılı: 2016
Proje Bitiş Yılı: 2016
Toplam İnşaat Alanı: 450 m2