26/33
Paylaş
Resmi Orjinal Boyutunda Göster
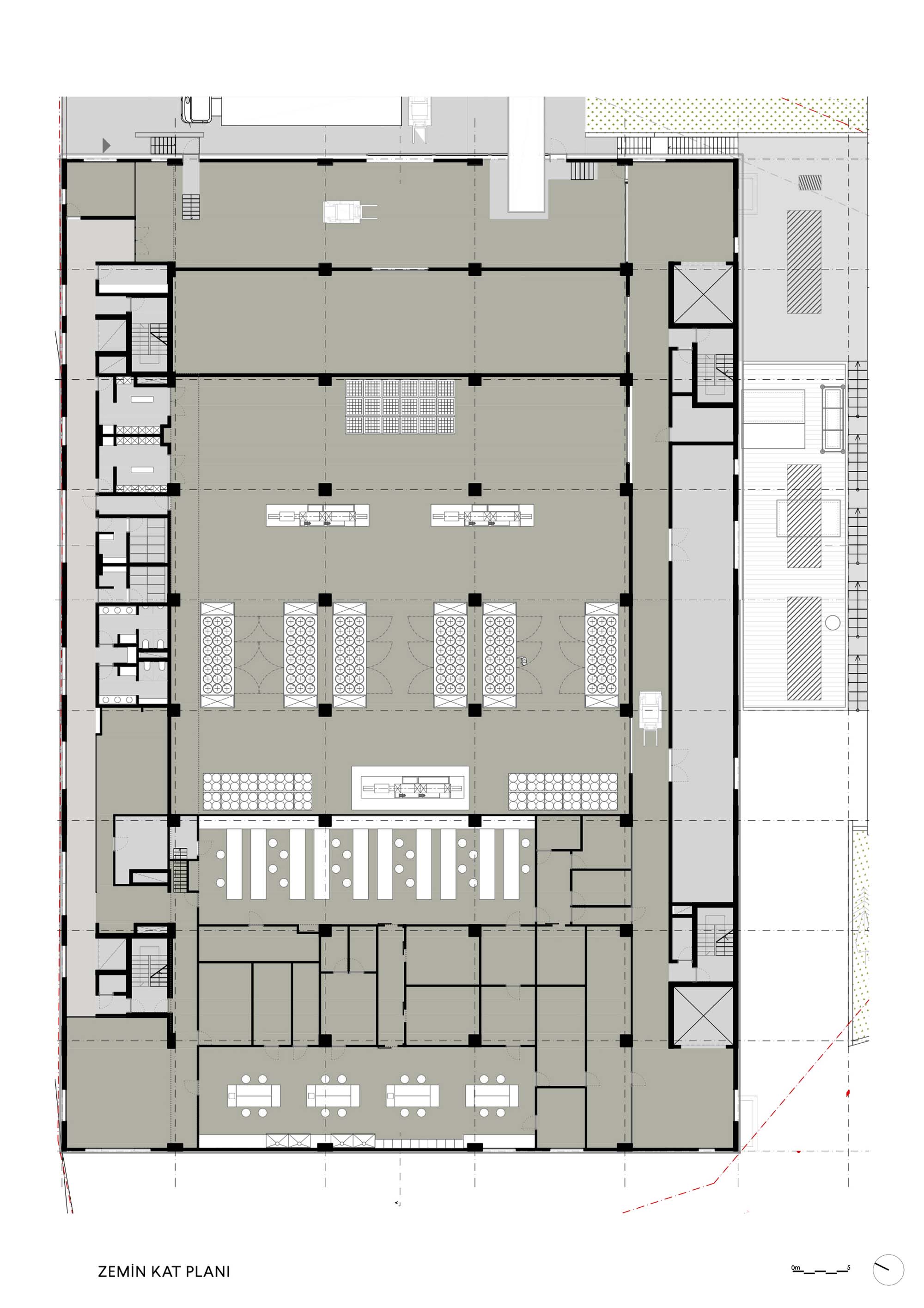
Balparmak Üretim ve Yönetim Yapısı
Proje Yeri: Çekmeköy, İstanbul
Proje Ofisi: Nevzat Sayın Mimarlık Hizmetleri (NSMH)
Proje Tipi: Ofis, Fabrika
Proje Tipi Grubu: Endüstriyel
Tasarım Ekibi: Nevzat Sayın, Serkan Çakıt, Tuğçe Şık Erdoğan, Sami Metin Uludoğan
İşveren: Arıdan Gıda
Danışman: Yener&Yener Mühendislik
Ana Yüklenici: Altıparmak, Işık İnce Yapı, Nida İnşaat
Aydınlatma Projesi: ON/OFF Aydınlatma Tasarımı
Statik Projesi: Emir İnşaat
Mekanik Projesi: Proda Danışmanlık
Elektrik Projesi: Enkom Mühendislik
Fotoğraf: Studio Majo, Engin Gerçek
Proje Başlangıç Yılı: 2011
Proje Bitiş Yılı: 2012
İnşaat Başlangıç Yılı: 2011
İnşaat Bitiş Yılı: 2015
Arsa Alanı: 6.900 m²
Toplam İnşaat Alanı: 20,000 m²