15/19
Paylaş
Resmi Orjinal Boyutunda Göster
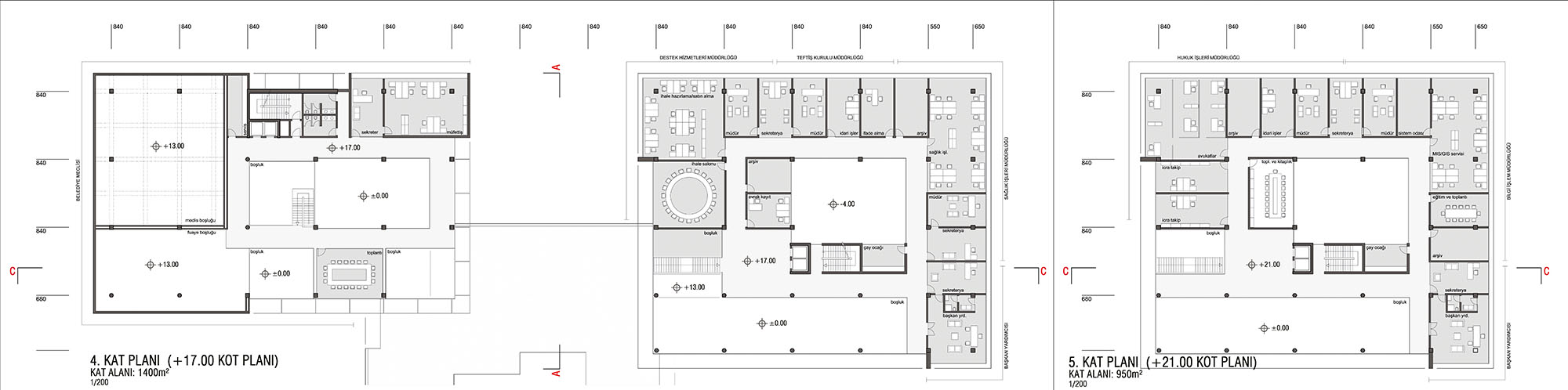
Katılımcı (Erkan Erdoğan Mimarlık), Efeler Belediyesi Hizmet Binası Mimari Proje Yarışması
Proje Yeri: Aydın
Proje Ofisi: Erkan Erdoğan Mimarlık
Proje Tipi: Belediye Hizmet Binası
Proje Tipi Grubu: Katılımcı
Tasarım Ekibi: Erkan Erdoğan
Danışman: Yüksel Konkan, Abdullah Bilgin, Kemal Güravşar
Yardımcı: Mustafa Yıldırım, Okan Türk