13/22
Paylaş
Resmi Orjinal Boyutunda Göster
Başlığı girin
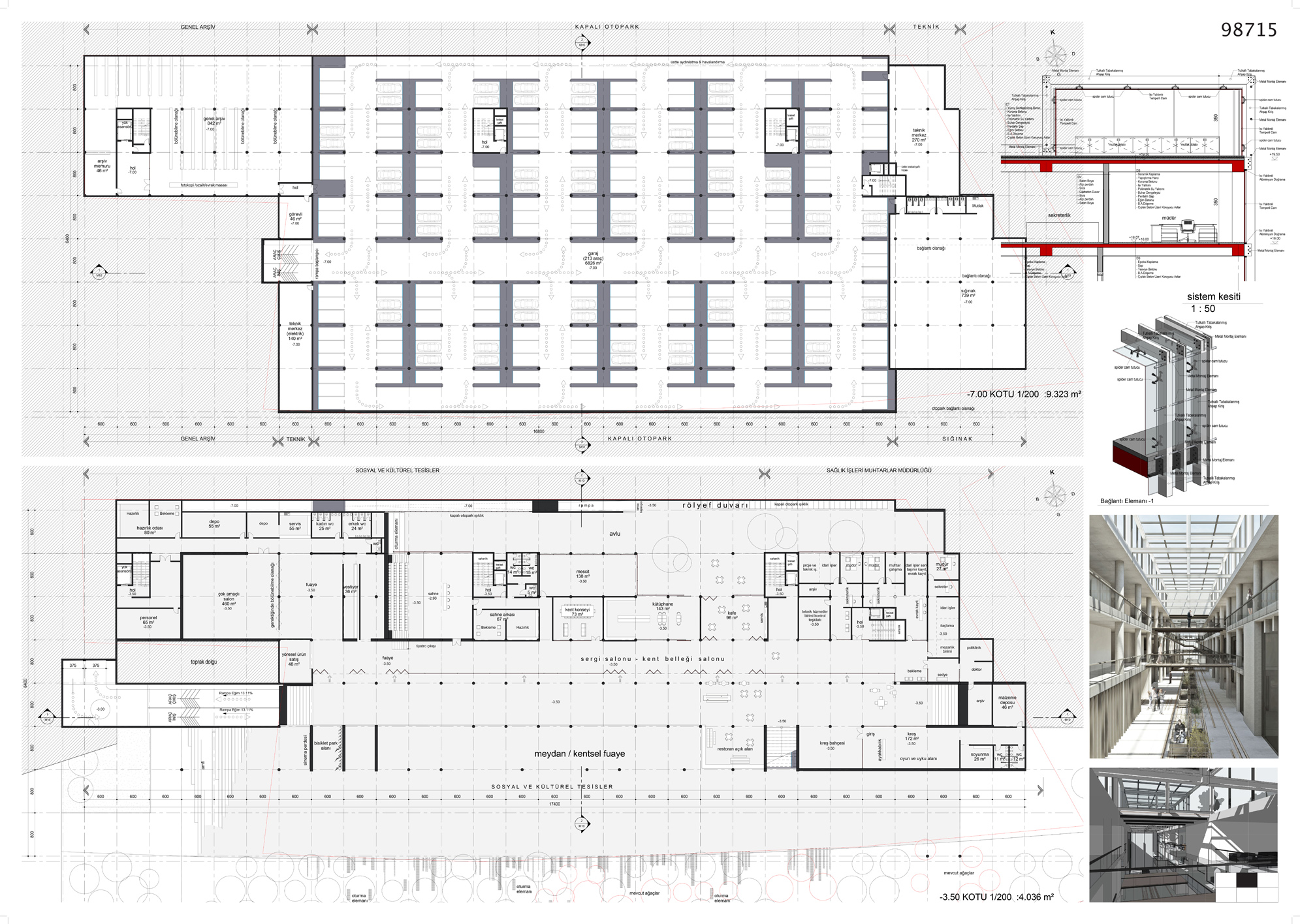
Project Location: Aydın
Project Type: Belediye Hizmet Binası
Proje Tipi Grubu: 3. Ödül
Tasarım Ekibi: Zehra Aksu, Ezgi Başar, Nesli Naz Aksu, Nur Çağlar
Consultant: Nesli Naz Aksu, Gürkan Erduman, Seda Temizel, Melih Özöner, Atilla Aksu, Kemal Aykaç
Yardımcı: Selcen Yeniçeri, Utku Coşkuner, Serkan Nurman, Ata Gün Aksu, Serpil Karaca