29/37
Paylaş
Resmi Orjinal Boyutunda Göster
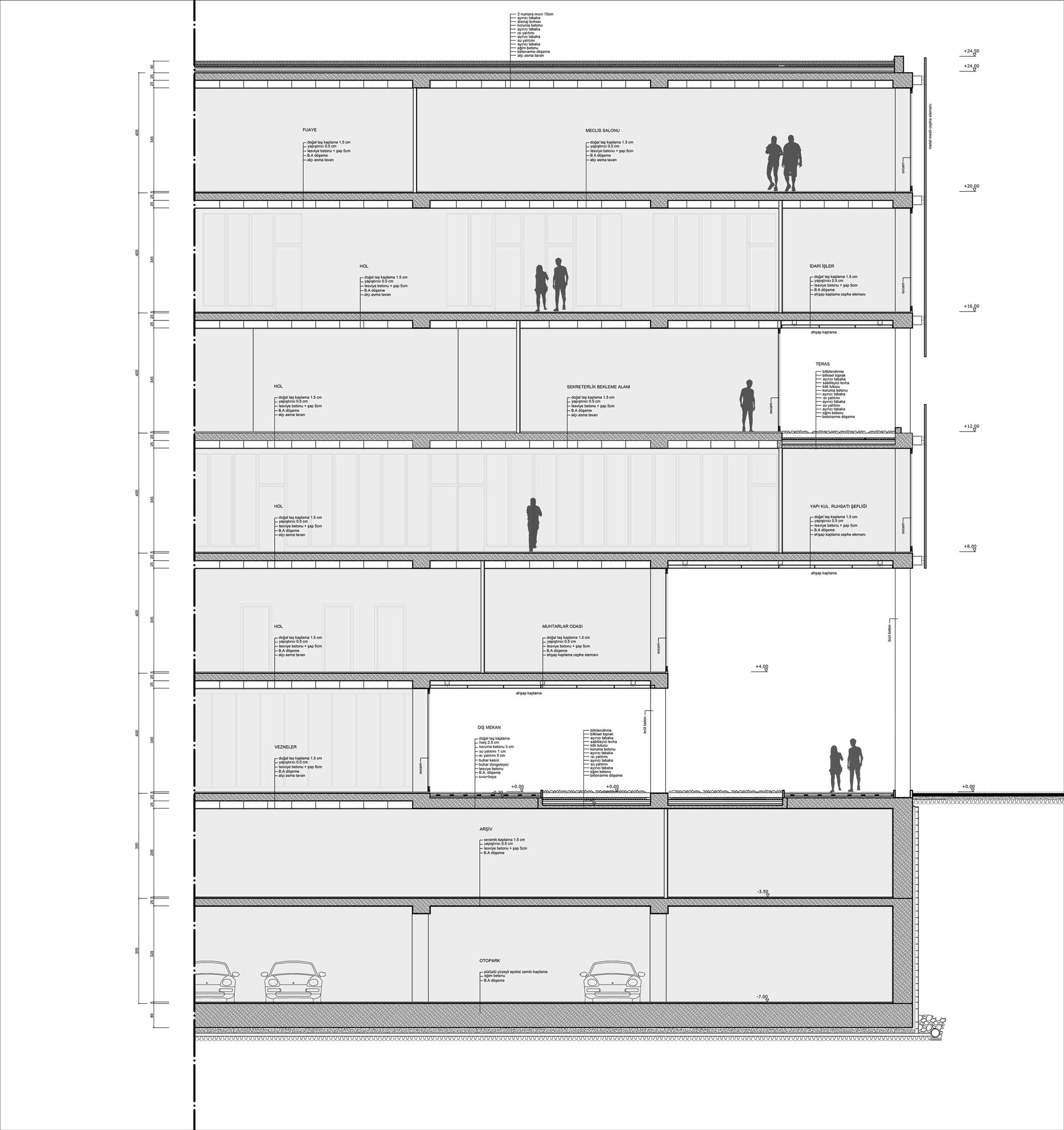
Katılımcı Efeler Belediyesi
Proje Yeri: Aydın
Proje Ofisi: Croop Architecture
Proje Tipi: Belediye Hizmet Binası
Proje Tipi Grubu: Katılımcı
Tasarım Ekibi: Merve Keskin, Tuğçe Yazıcı, Emre Engin
Danışman: İbrahim Anıl Biçer, Mehmet Boza, Meryem Kocaoğlu
Yardımcı: Tayfun Yapar, Oylum Yazıcı, Gökçe Babür