37/41
Paylaş
Resmi Orjinal Boyutunda Göster
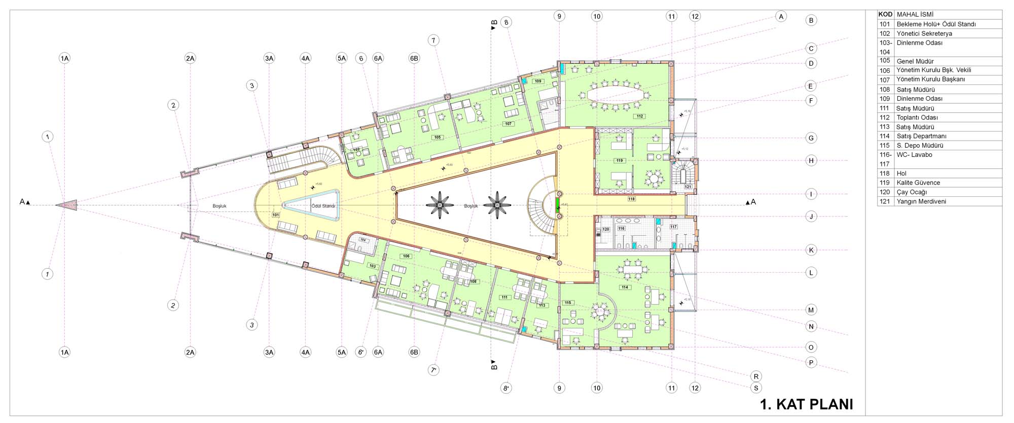
Menderes Tekstil Genel Müdürlük Yapısı
Project Location: Denizli
Project Office: Oran Mimarlık
Project Type: Offices
Proje Tipi Grubu: Commercial
Tasarım Ekibi: Vedat Tokyay, Özge Başağaç
Employer: Menderes Tekstil AŞ
Structural Project: Sait Yaymanoğlu
Mechanical Project: Veysel Aslancan
Electrical Project: Mehmet Özdemir
Project Start Date: 2006
Project End Date: 2006
Construction Start Date: 2007
Construction End Date: 2007