18/18
Paylaş
Resmi Orjinal Boyutunda Göster
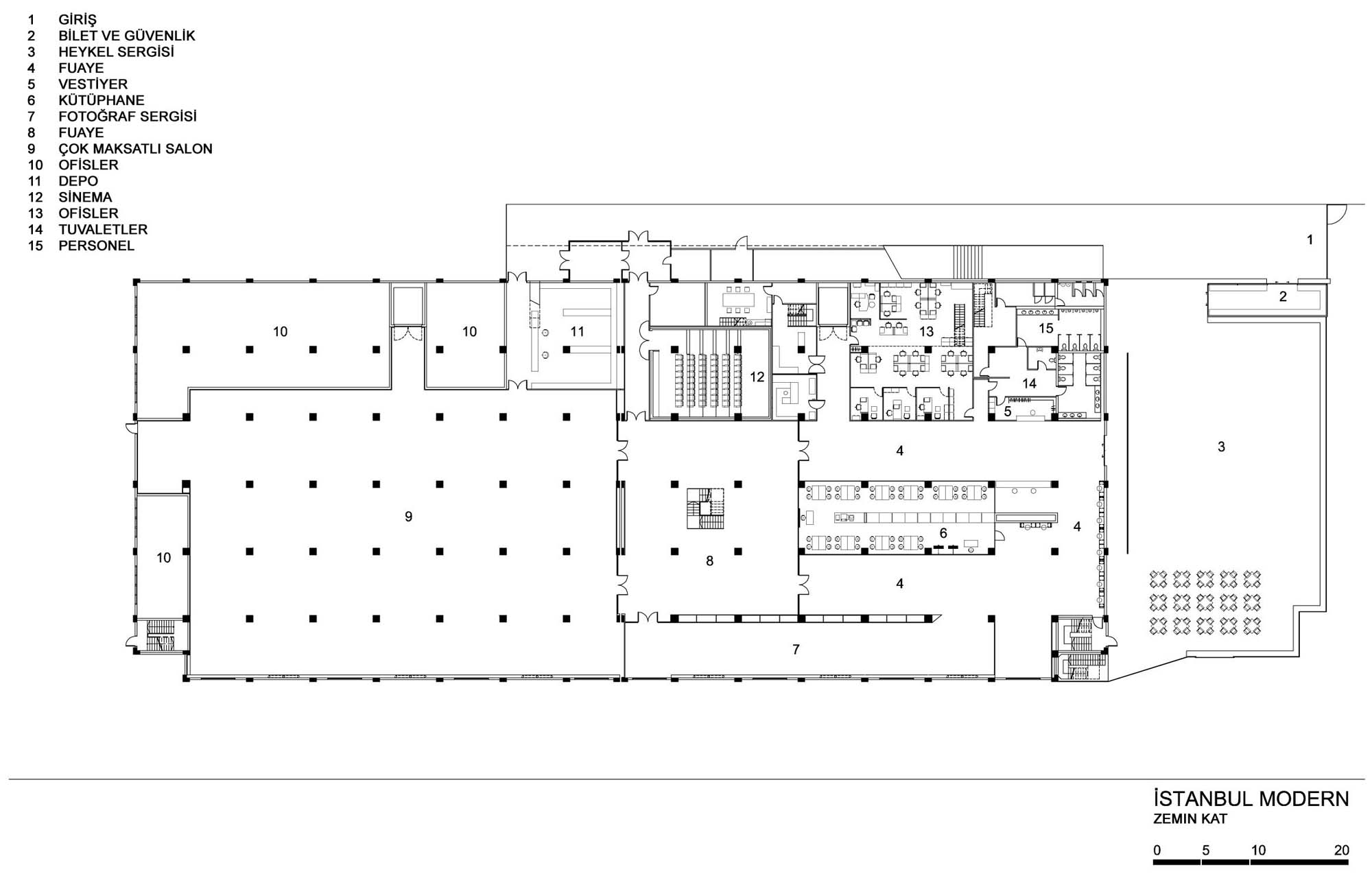
İstanbul Modern Sanat Müzesi
Proje Yeri: İstanbul, Beyoğlu
Proje Ofisi: Tabanlıoğlu Mimarlık
Proje Tipi: Müze
Proje Tipi Grubu: Kültür
Tasarım Ekibi: Melkan Gürsel, Murat Tabanlıoğlu
İşveren: İstanbul Modern Sanat Müzesi
Yardımcı: Hande Pusat Silan, Süleyman Akkaş, Emre Özer, Cem Arıcıoğlu, Arzu Meyvacı, Erguvan Özgür Ünal
Proje Yöneticisi: Eczacıbaşı Yapı Ürünleri Grubu, Namık Kemal İzler, Bürgehan Postalcı, Nilüfer Konuk, Reşat Alatalı, Hakan Küçük
Fotoğraf: Murat Germen
Proje Başlangıç Yılı: 2004
Proje Bitiş Yılı: 2004
İnşaat Başlangıç Yılı: 2004
İnşaat Bitiş Yılı: 2004
Toplam İnşaat Alanı: 8,000 m²