12/15
Paylaş
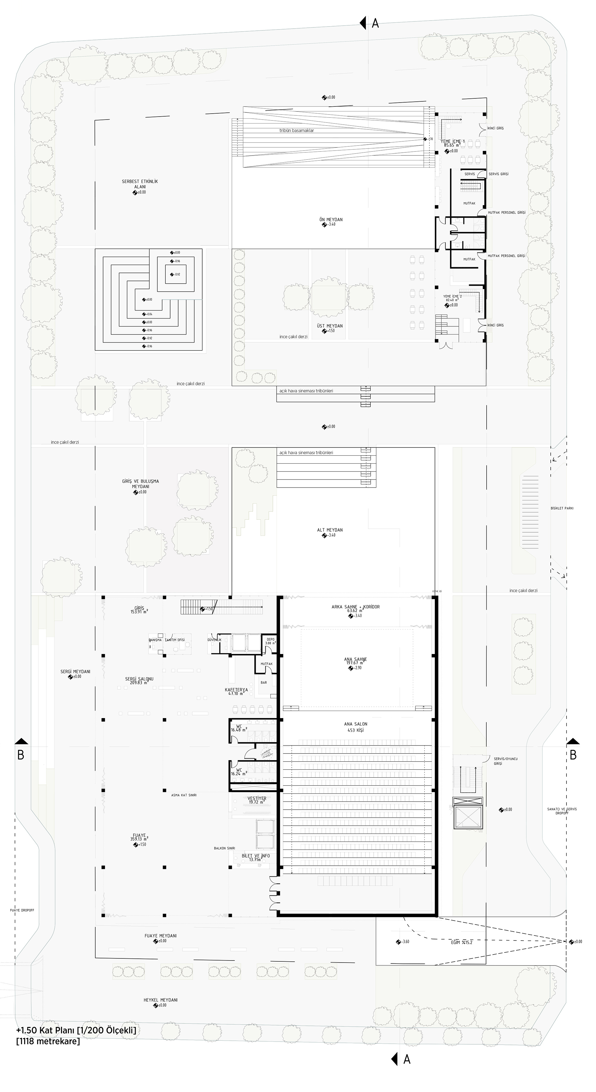
Resmi Orjinal Boyutunda Göster
Katılımcı - İzmir Selçuk Belediyesi Kültür ve Gençlik Merkezi Mimari Proje Yarışması
Proje Yeri: İzmir, Selçuk
Proje Tipi: Kültür Merkezi
Proje Tipi Grubu: Katılımcı
Tasarım Ekibi: Atıl Aggündüz, Başak Eren, Buse Özçelik, İpek Fetil
Danışman: Hüseyin Kahvecioğlu
Yardımcı: Cansu Güreser