4/5
Paylaş
Resmi Orjinal Boyutunda Göster
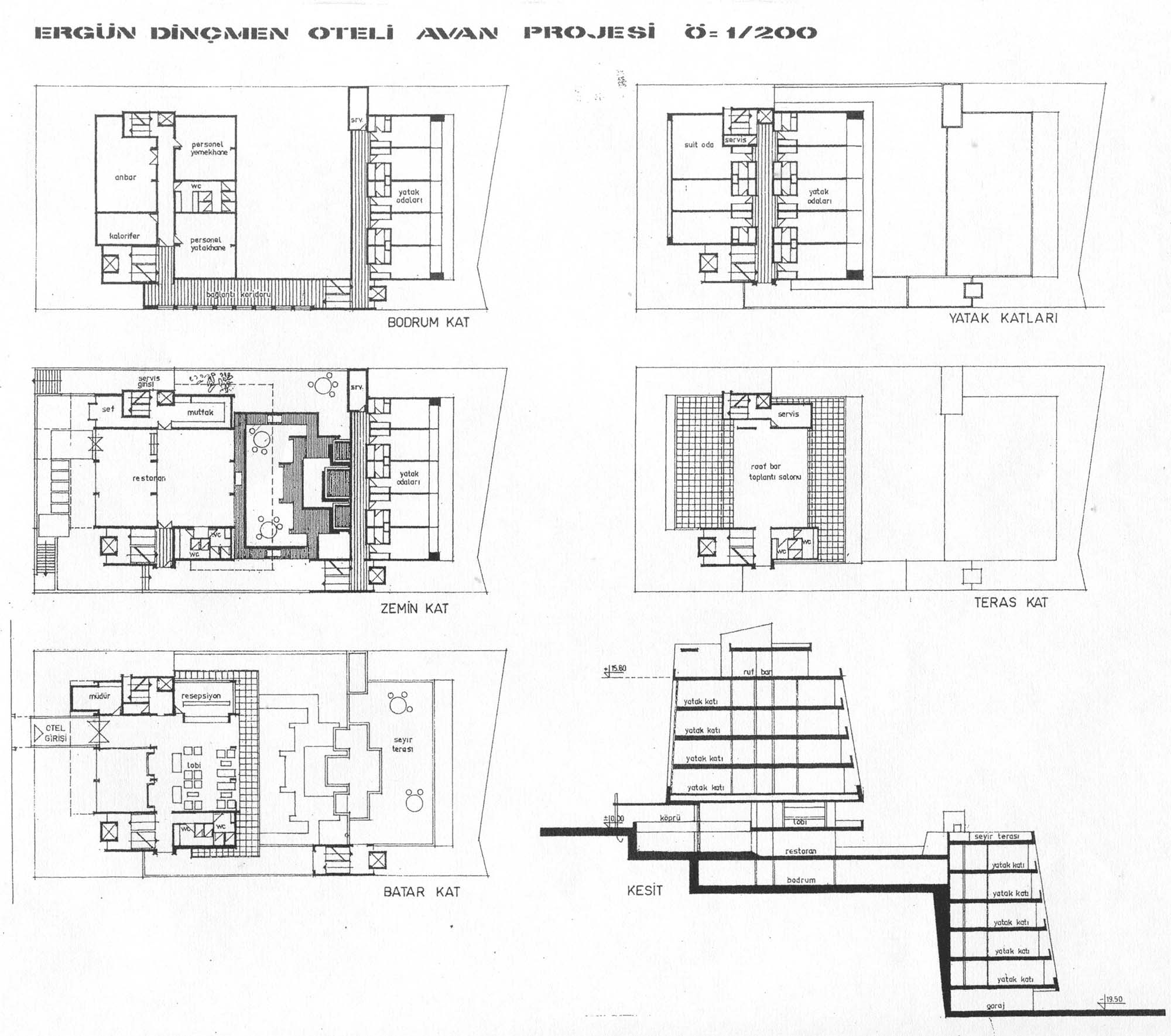
Ergün Dinçmen Oteli
Proje Yeri: İstanbul
Proje Ofisi: Çil Mimarlık ve Sanat Merkezi
Proje Tipi: Otel / Motel
Proje Tipi Grubu: Konaklama
Tasarım Ekibi: Nafi Çil
İşveren: Ergün Dinçmen
Proje Başlangıç Yılı: 1987
Proje Bitiş Yılı: 1987