8/27
Paylaş
Resmi Orjinal Boyutunda Göster
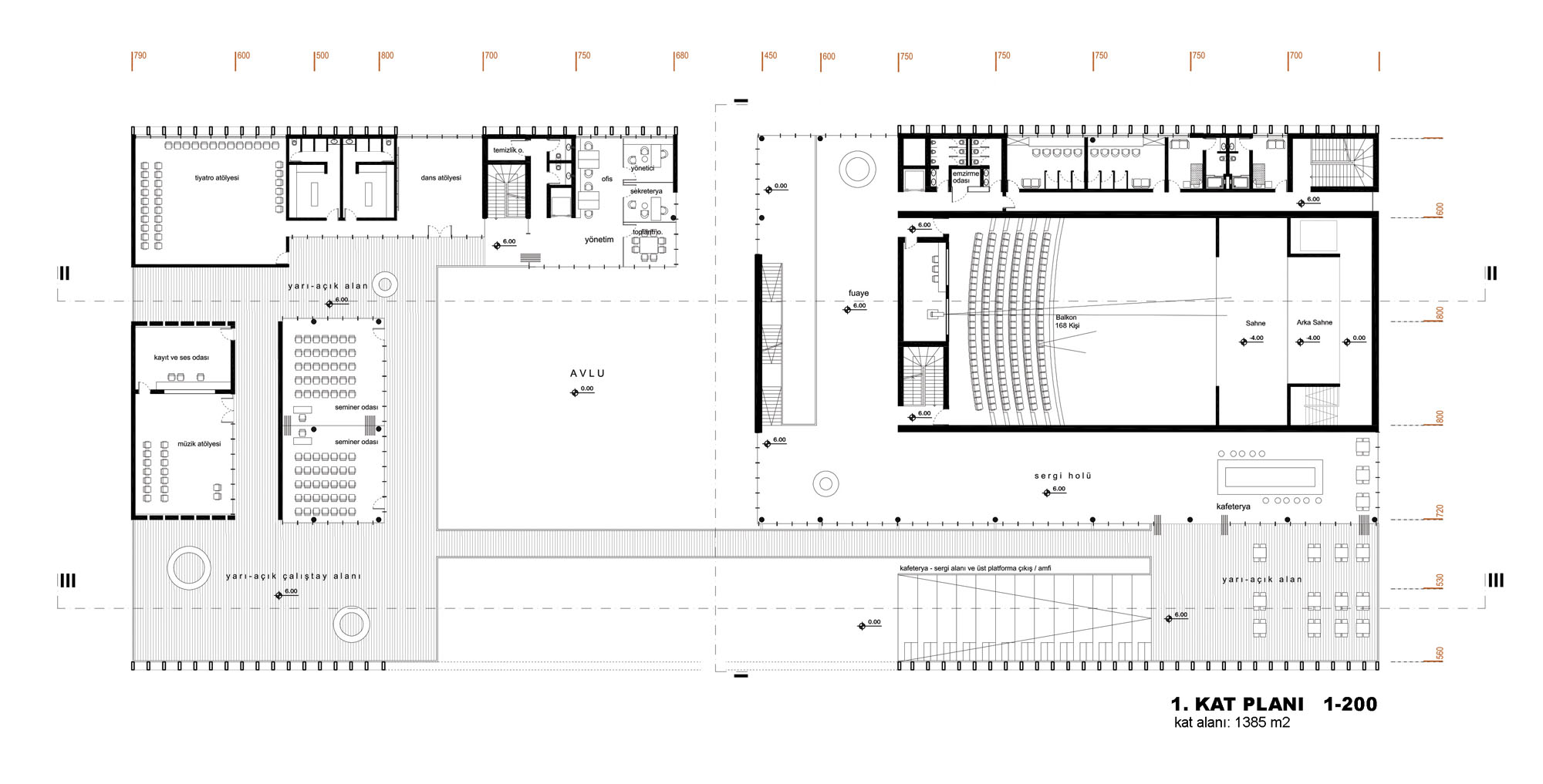
3. Ödül
Proje Yeri: Selçuk, İzmir
Proje Tipi: Kültür Merkezi
Proje Tipi Grubu: 3. Ödül
Tasarım Ekibi: Ervin Garip, Banu Garip
Yardımcı: Samet Küçükbay, Murat Gürsu