6/19
Paylaş
Resmi Orjinal Boyutunda Göster
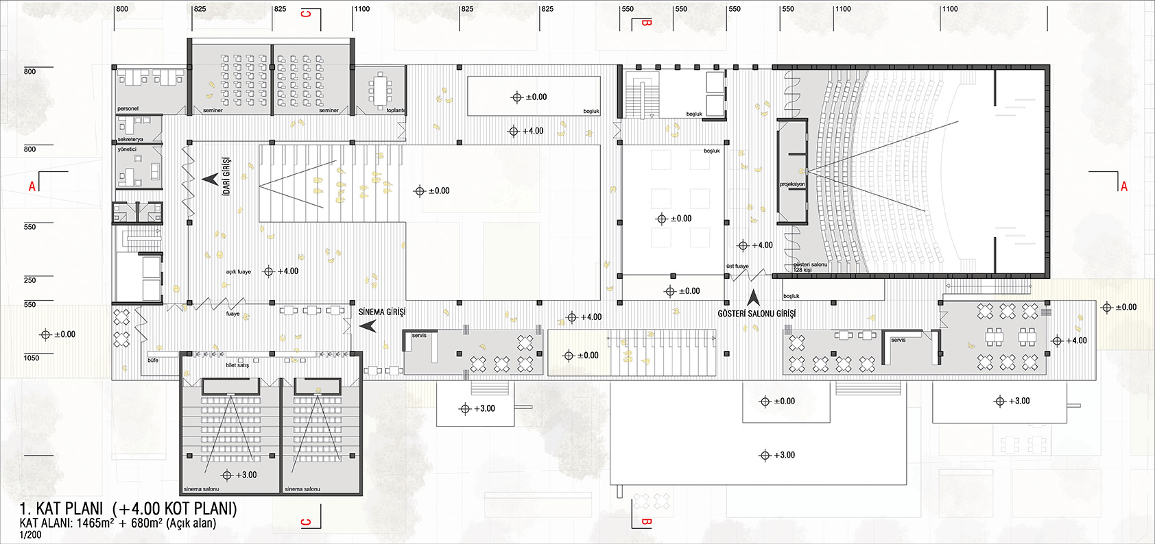
Katılımcı, İzmir Selçuk Belediyesi Kültür ve Gençlik Merkezi Yarışması
Proje Yeri: Selçuk, İzmir
Proje Ofisi: Erkan Erdoğan Mimarlık
Proje Tipi Grubu: Katılımcı
Tasarım Ekibi: Erkan Erdoğan
Yardımcı: Mustafa Yıldırım, Okan Türk