11/21
Paylaş
Resmi Orjinal Boyutunda Göster
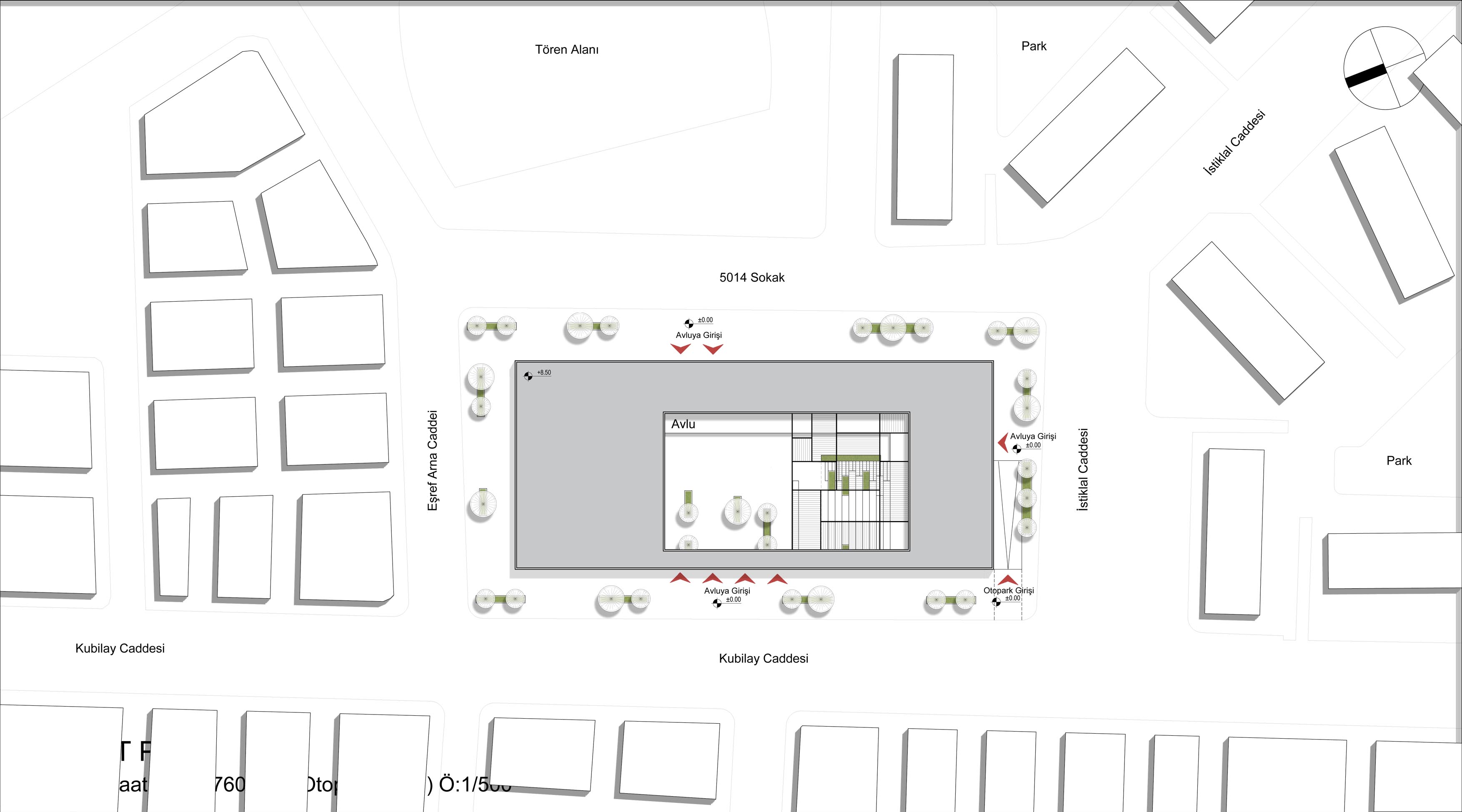
Katlımcı (32125), İzmir Selçuk Belediyesi Kültür ve Gençlik Merkezi Yarışması
Project Location: Selçuk, İzmir
Project Office: MEES Mimarlık
Project Type: Cultural Center
Proje Tipi Grubu: Katılımcı
Tasarım Ekibi: Mete Keskin, Esra Yılmaz Keskin