13/20
Paylaş
Resmi Orjinal Boyutunda Göster
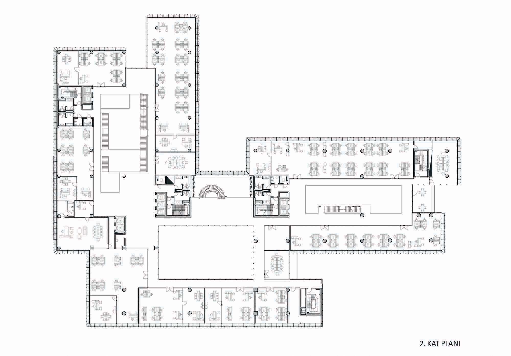
Bakırköy Belediyesi Hizmet Binası ve Çevresi Davetli Yarışma
Proje Yeri: Bakırköy, İstanbul
Proje Ofisi: Evrenol Architects, Kolektif Mimarlar
Proje Tipi: Belediye Hizmet Binası
Proje Tipi Grubu: 1. Ödül
Tasarım Ekibi: Mehpare Evrenol, Sıddık Güvendi, Barış Demir
İşveren: Bakırköy Belediyesi
Yardımcı: Ece Abdioğlu, Büşra Temiz, Oğuzhan Yılmaz, Zeynep Sena Kocabaş, Ebru Elif Aydın, Merve Eflatun
Proje Yöneticisi: Yeşim Köprülü Asena, Berna Açık Tunçbaş, Oya Eskin Güvendi
Statik Projesi: CGA Mühendislik
Mekanik Projesi: Arkon Mekanik
Elektrik Projesi: ENB Mühendislik
Maket: Promak Tasarım