12/12
Paylaş
Resmi Orjinal Boyutunda Göster
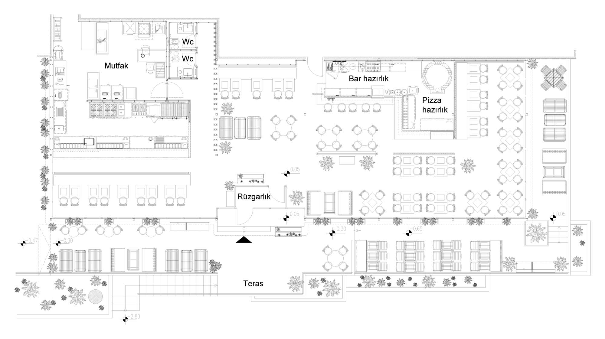
Numnum Armada
Proje Yeri: Çankaya, Ankara
Proje Ofisi: Ofist
Proje Tipi: Restoran / Kafe / Bar
Proje Tipi Grubu: Ticari
Tasarım Ekibi: Yasemin Arpaç, Sebahattin Emir
İşveren: İstanbul Yiyecek İçecek Grubu
Ana Yüklenici: Ata Mimarlik
Fotoğraf: Ali Bekman Photography
Proje Başlangıç Yılı: 2016
Proje Bitiş Yılı: 2016
İnşaat Başlangıç Yılı: 2016
İnşaat Bitiş Yılı: 2016
Arsa Alanı: 350 m²
Toplam İnşaat Alanı: 250 m²