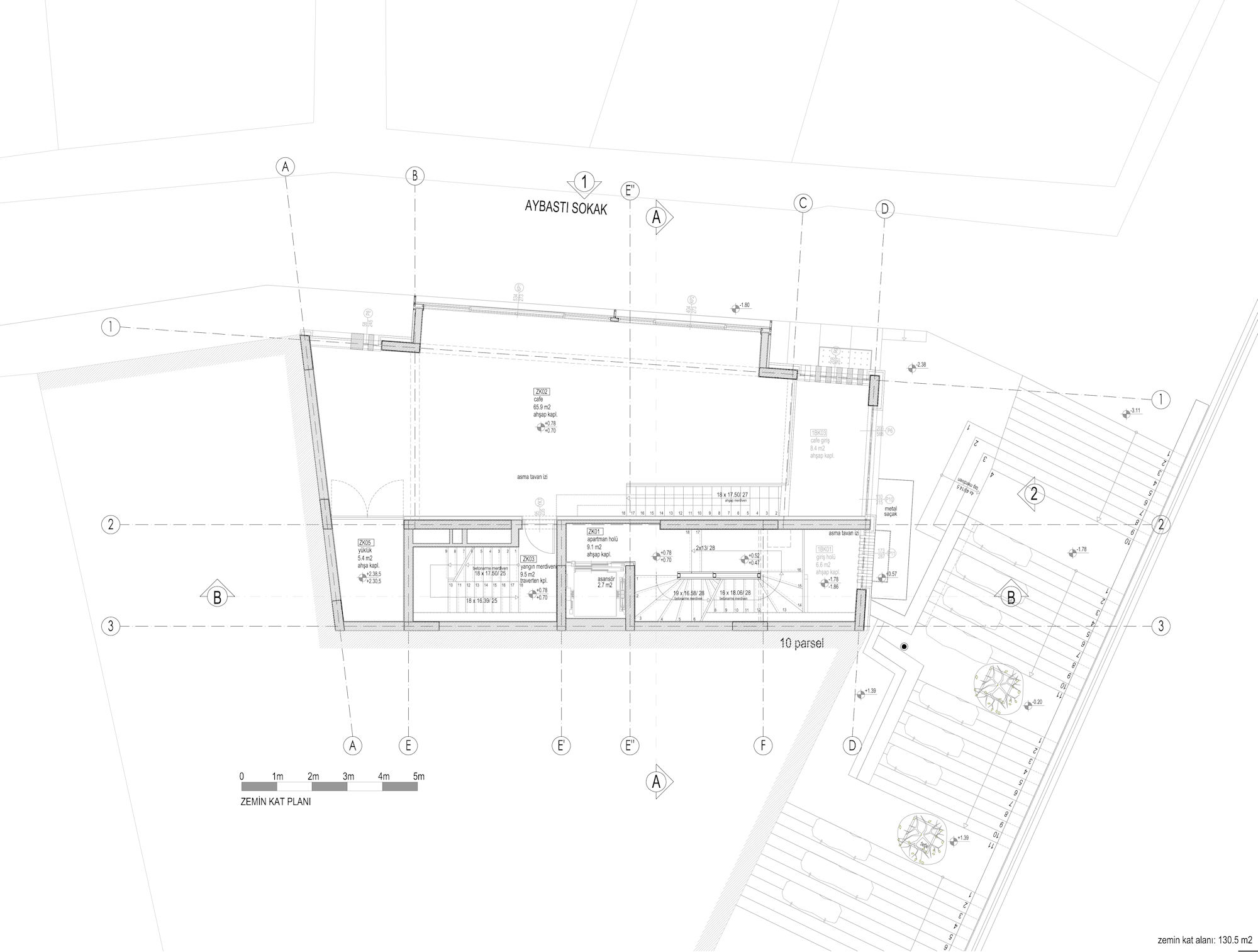
Zemin Kat Planı
23/27
Paylaş
Resmi Orjinal Boyutunda Göster
Belkıs Apartmanı
Fotoğraflar: Alp Eren
Project Location: Şişhane
Project Office: Boran Ekinci Mimarlık
Project Type: Apartment
Proje Tipi Grubu: Konut
Tasarım Ekibi: Boran Ekinci
Employer: Segment İnşaat
Yardımcı: Handenur Yazıcı Engin, Sasan Sahafi
Structural Project: Şennur Aksu
Mechanical Project: Selçuk Kay, KDB Demirli Mühendislik
Electrical Project: Cuma Üzüm, Arc Elektrik
Project Start Date: 2009
Project End Date: 2010
Construction Start Date: 2010
Construction End Date: 2011
Building Plot Area: 131 m2
Total Construction Area: 1.348 m2