33/38
Paylaş
Resmi Orjinal Boyutunda Göster
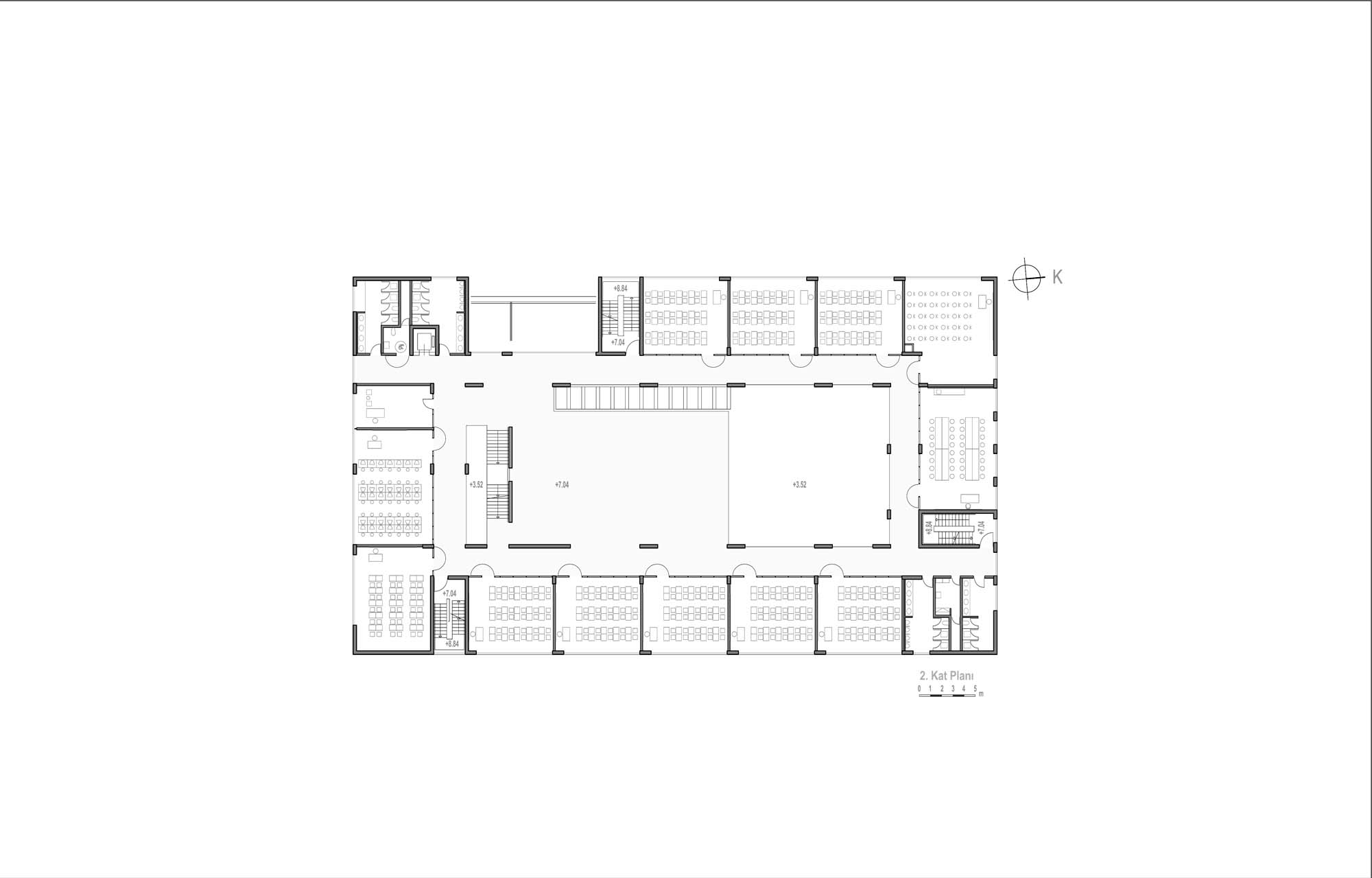
Güngören Tozkoparan Ortaokulu
Proje Yeri: Güngören, İstanbul
Proje Ofisi: Uygur Mimarlık
Proje Tipi: İlkokul
Tasarım Ekibi: Semra Uygur, Özcan Uygur
İşveren: T.C. İstanbul Valiliği İl Özel İdaresi İstanbul Proje
Yardımcı: Eser Köken İşleyici, Zümral Aygüler Kartal, Sevda Özkan İmamoğlu
Ana Yüklenici: Tigris Mühendislik Müşavirlik
Peyzaj Mimarlığı: Can Kubin
Proje Yöneticisi: Şahin Çeven
Statik Projesi: Levent Aksaray
Mekanik Projesi: Bahri Türkmen
Elektrik Projesi: Kemal Ovacık
Tesisat Projesi: Bahri Türkmen
Fotoğraf: Cemal Emden
Proje Başlangıç Yılı: 2012
Proje Bitiş Yılı: 2013
İnşaat Başlangıç Yılı: 2013
İnşaat Bitiş Yılı: 2014
Arsa Alanı: 4,074 m²
Toplam İnşaat Alanı: 8,636 m²