16/17
Paylaş
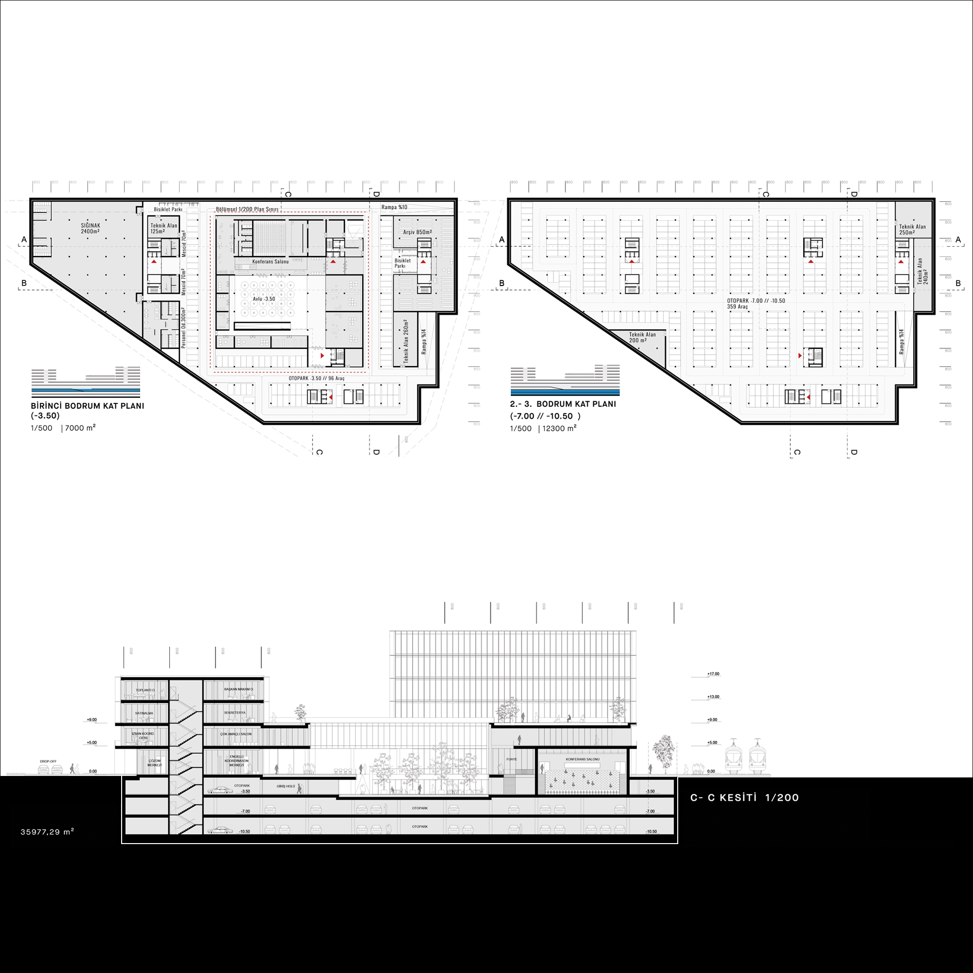
Resmi Orjinal Boyutunda Göster
Eşdeğer Mansiyon (58369)
Proje Yeri: İzmir
Proje Ofisi: 9016 Mimarlık
Proje Tipi: Transfer Merkezi
Proje Tipi Grubu: Eşdeğer Mansiyon
Tasarım Ekibi: Mehmet Metin Polat, Bilge Altuğ, Ceyda Cihangir, Erman Uçaroğlu
Danışman: Gizem Özer, Onur Ertaş, Ömer Cenk Tiftikçigil, Belgin Pekcan
Yardımcı: Ecem Özden