6/15
Paylaş
Resmi Orjinal Boyutunda Göster
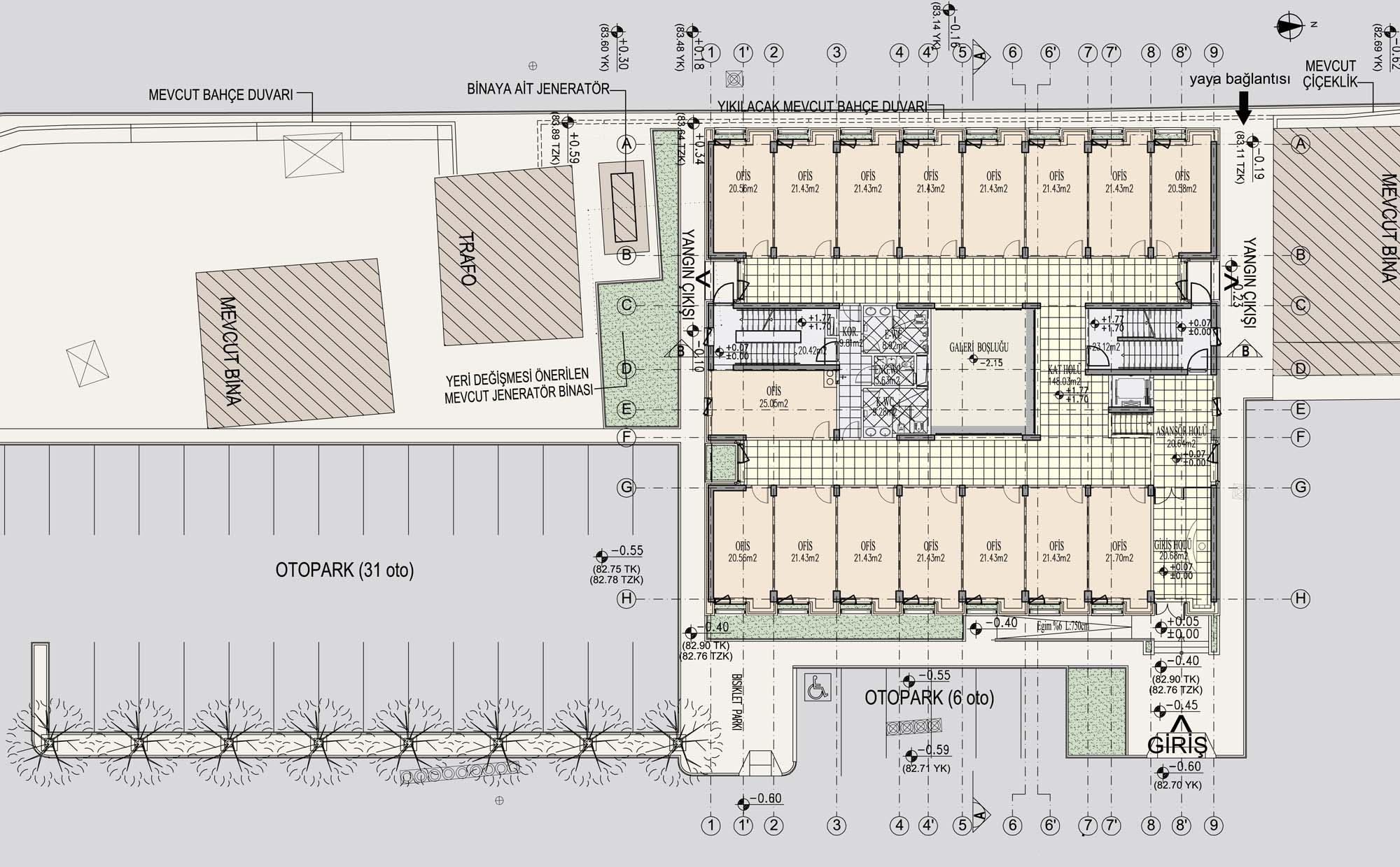
Bayrampaşa Sebze Hali Büro, Banka ve Kafeterya Binaları
Project Location: Bayrampaşa, İstanbul
Project Office: Uz Mimarlık Atölyesi, Atölye 5 Mimarlık
Project Type: Offices, Restaurant / Café / Bar
Proje Tipi Grubu: Commercial
Tasarım Ekibi: Mehmet Soylu, Mete Öz
Employer: İstanbul Büyükşehir Belediyesi Projeler Daire Başkanlığı Üst Yapı Projeler Müdürlüğü
Yardımcı: Alper Perçin, Abdulkadir Yılmaz, Yasin Bulut
Ana Yüklenici: Uz Mimarlık Atölyesi ve Atölye 5 Mimarlık İş Ortaklığı
Peyzaj Mimarlığı: Yeter Baş Bilir
Interior Architecture: Uz Mimarlık Atölyesi
Projcet Manager: Mete Öz
Concept Design: Mehmet Soylu, Mete Öz
Construction Drawings: Uz Mimarlık Atölyesi
Structural Project: Gökhan Beşbaş
Mechanical Project: Melih Özöner
Electrical Project: Özgür Ulupınar
Plumbing Project: Melih Özöner
Çelik Projesi: Gökhan Beşbaş
Altyapı Projesi: Ali Cumhur Zibel
Construction Site Manager: Ahmet Erkan Özkösemen, Yurtyapan İnşaat
Project Start Date: 2012
Project End Date: 2013
Construction Start Date: 2014
Construction End Date: 2014
Building Plot Area: 1,925 m2
Total Construction Area: 4,104 m2