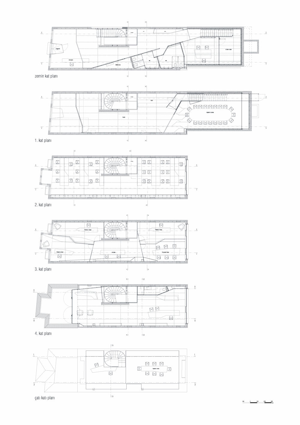
Planlar
43/43
Paylaş
Resmi Orjinal Boyutunda Göster
Önen Holding Genel Müdürlük Binası
Proje Yeri: İstanbul, Sarıyer
Proje Ofisi: AAW Ahmet Alataş Workshop
Proje Tipi: Ofis
Tasarım Ekibi: Ahmet Alataş
Yardımcı: Şaban Uzun, Burcu Çekli, Özge Güngör, Merve Kahraman, Sinan Bayrak, Dilan Yüksel, Emre Açar
Arsa Alanı: 300 m²
Toplam İnşaat Alanı: 1080 m²