13/15
Paylaş
Resmi Orjinal Boyutunda Göster
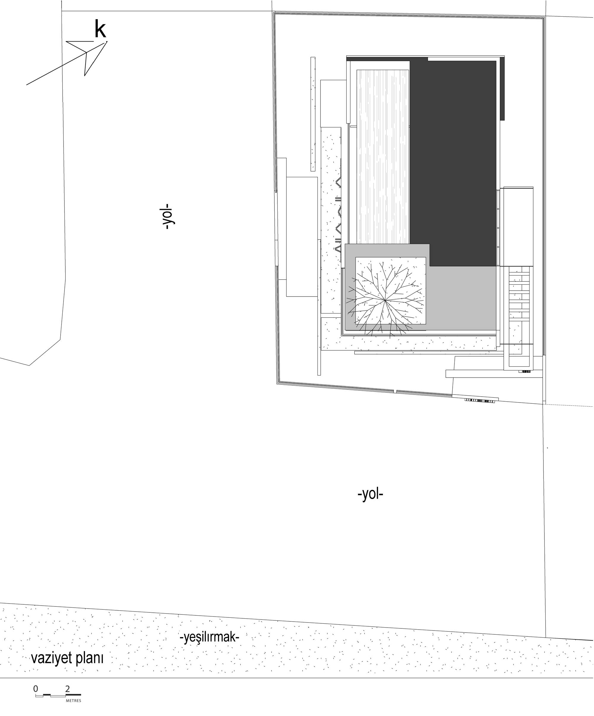
Uysal Apartmanı
Proje Yeri: Amasya
Proje Ofisi: Özdihan Gökçe Mimarlık
Proje Tipi: Apartman
Proje Tipi Grubu: Konut
Tasarım Ekibi: Özdihan Gökçe
İşveren: Merthel İnşaat
Yardımcı: Kamran Farschi, Merve Güven
Proje Yöneticisi: Özdihan Gökçe
Fotoğraf: Özdihan Gökçe Mimarlık
Proje Başlangıç Yılı: 2014
Proje Bitiş Yılı: 2014
İnşaat Başlangıç Yılı: 2015
İnşaat Bitiş Yılı: 2016
Arsa Alanı: 445 m2
Toplam İnşaat Alanı: 1,000 m²