6/8
Paylaş
Resmi Orjinal Boyutunda Göster
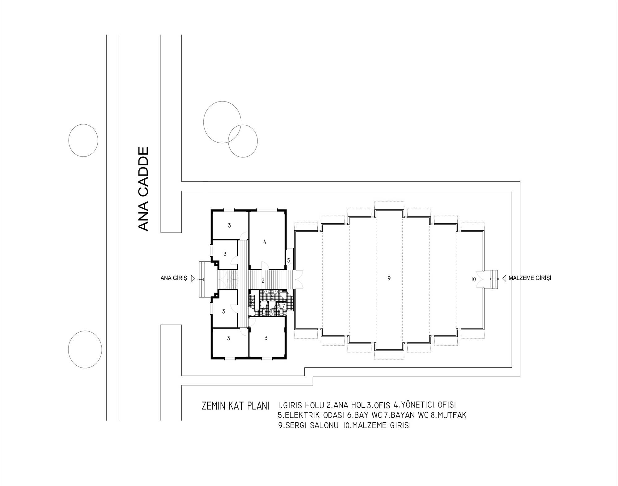
Abu Ghraib Sergi Salonu
Proje Yeri: Bağdat, Irak
Proje Ofisi: A/Y Mimarlık
Tasarım Ekibi: Abbas Hacıömeroğlu, Yalçın Türkdoğan
İşveren: Soner Görker
Statik Projesi: Atilla Altınyaldız
Proje Başlangıç Yılı: 1985
Proje Bitiş Yılı: 1985
İnşaat Başlangıç Yılı: 1985
İnşaat Bitiş Yılı: 1985
Toplam İnşaat Alanı: 600 m²