16/17
Paylaş
Resmi Orjinal Boyutunda Göster
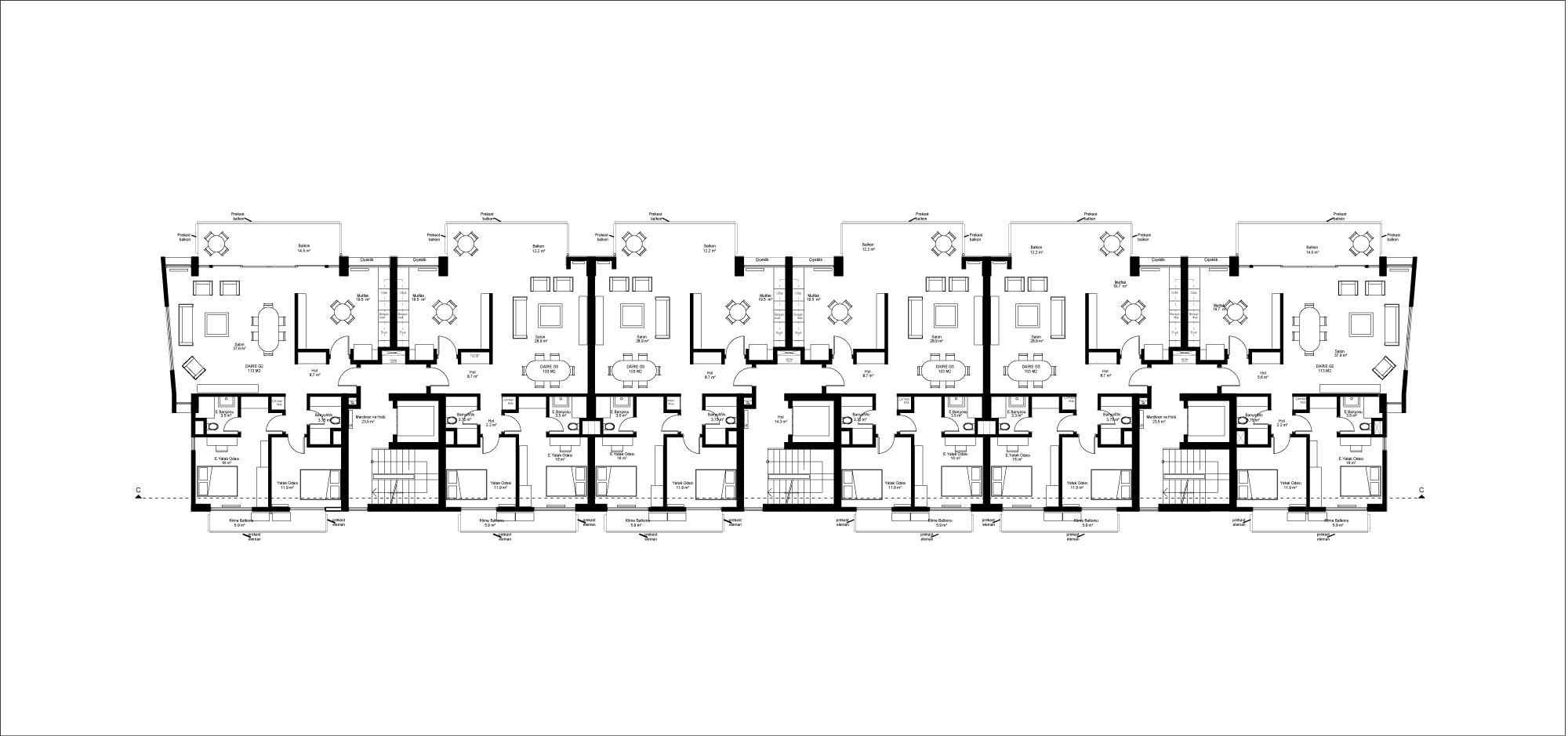
Akçura Apartmanları
Project Location: Seyhan, Adana
Project Office: Arıkoğlu Arkitekt
Project Type: Housing Complex
Proje Tipi Grubu: Konut
Tasarım Ekibi: Şahin Arıkoğlu
Employer: Göregen Seba İnşaat
Yardımcı: Kaya Arıkoğlu
Ana Yüklenici: Göregen Seba İnşaat
Peyzaj Mimarlığı: Ahmet Yıldızcı
Interior Architecture: Şahin Arıkoğlu
Projcet Manager: Şahin Arıkoğlu
Concept Design: Şahin Arıkoğlu, Kaya Arıkoğlu
Construction Drawings: Arıkoğlu Arkitekt
Structural Project: Muhittin Yengüner
Mechanical Project: Selahattin Alsancak
Electrical Project: Serkan Aydın
Plumbing Project: Selahattin Alsancak
Architectural Supervision: Şebnem Özal
Construction Site Manager: Halis Özbaşaran
Project Start Date: 2012
Project End Date: 2014
Construction Start Date: 2014
Construction End Date: 2016
Building Plot Area: 5,772 m2
Total Construction Area: 6,927 m2