14/17
Paylaş
Resmi Orjinal Boyutunda Göster
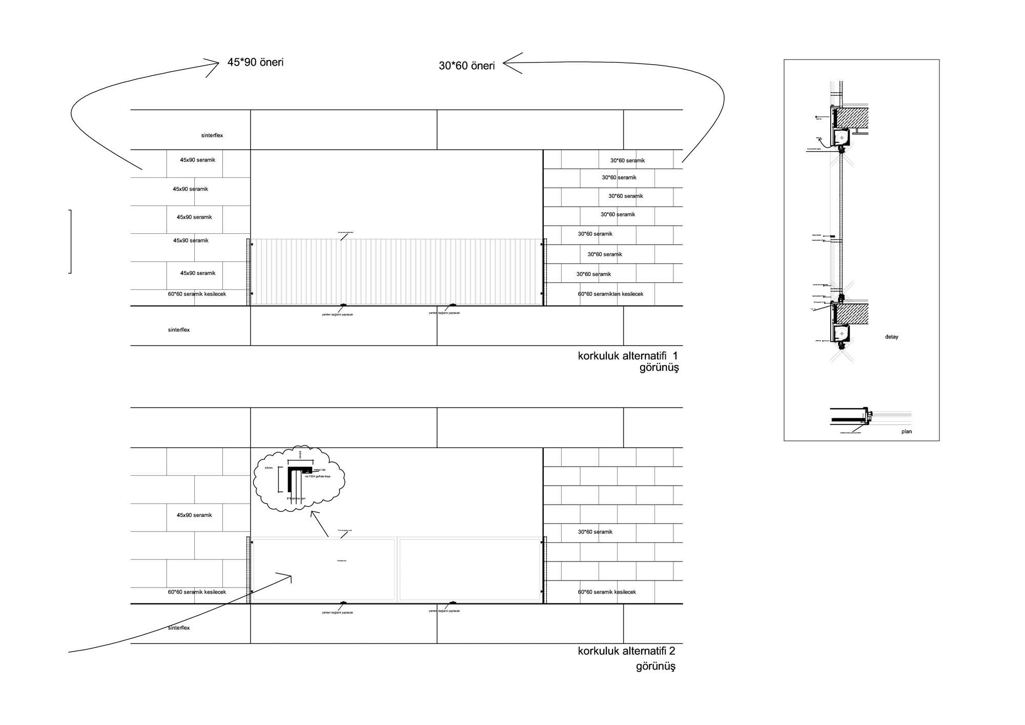
Ak Apartmanı Cephe Tasarımı
Project Location: Kadıköy, İstanbul
Project Office: Yüksel Öztürk Mimarlık Bürosu
Project Type: Apartment
Proje Tipi Grubu: Konut
Tasarım Ekibi: Yüksel Öztürk
Employer: Ulusoy İnşaat
Ana Yüklenici: Ulusoy İnşaat
Mechanical Project: Kaya Mühendislik
Electrical Project: Kaya Mühendislik
Plumbing Project: Kaya Mühendislik
Photography: Yüksel Öztürk
Project Start Date: 2015
Project End Date: 2015
Construction Start Date: 2015
Construction End Date: 2016
Building Plot Area: 1,254 m²
Total Construction Area: 5,487 m²