15/18
Paylaş
Resmi Orjinal Boyutunda Göster
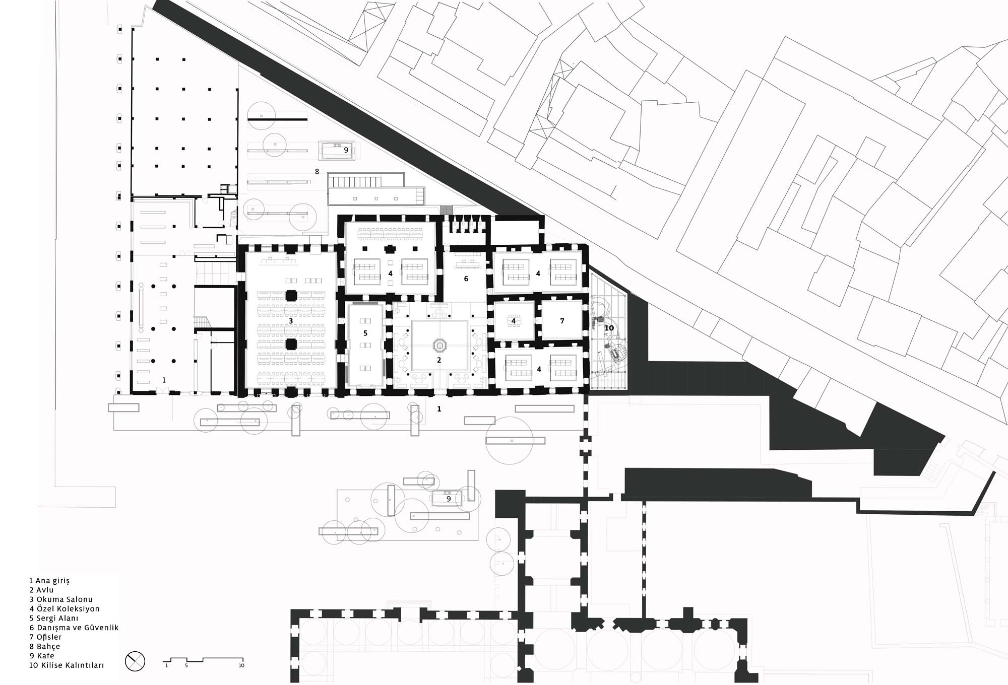
Beyazıt Devlet Kütüphanesi Renovasyon Projesi
Proje Yeri: İstanbul, Fatih
Proje Ofisi: Tabanlıoğlu Mimarlık
Proje Tipi: Kütüphane
Proje Tipi Grubu: Kültür
Tasarım Ekibi: Melkan Gürsel, Murat Tabanlıoğlu
İşveren: Kültür ve Turizm Bakanlığı, Aydın Doğan Vakfı
Yardımcı: Hande Pusat Silan, Derya Genç, Irem Çatay, Kıvanç Cucur, Nazlı Tınaztepe, Deniz Manisalı Leba
Ana Yüklenici: Rena İnşaat
İç Mekan Projesi: Tabanlıoğlu Mimarlık, Hande Pusat Silan, Derya Genç, İrem Çatay, Kıvanç Cucur
Aydınlatma Projesi: Studio Dinnebier
Statik Projesi: Celal Erdem, CE Mühendislik
Mekanik Projesi: GN Mühendislik
Elektrik Projesi: HB Teknik Elektrik Mühendislik
Fotoğraf: Emre Dörter
Proje Başlangıç Yılı: 2006
Proje Bitiş Yılı: 2016
İnşaat Başlangıç Yılı: 2009
İnşaat Bitiş Yılı: 2016
Toplam İnşaat Alanı: 2,000 m²