11/18
Paylaş
Resmi Orjinal Boyutunda Göster
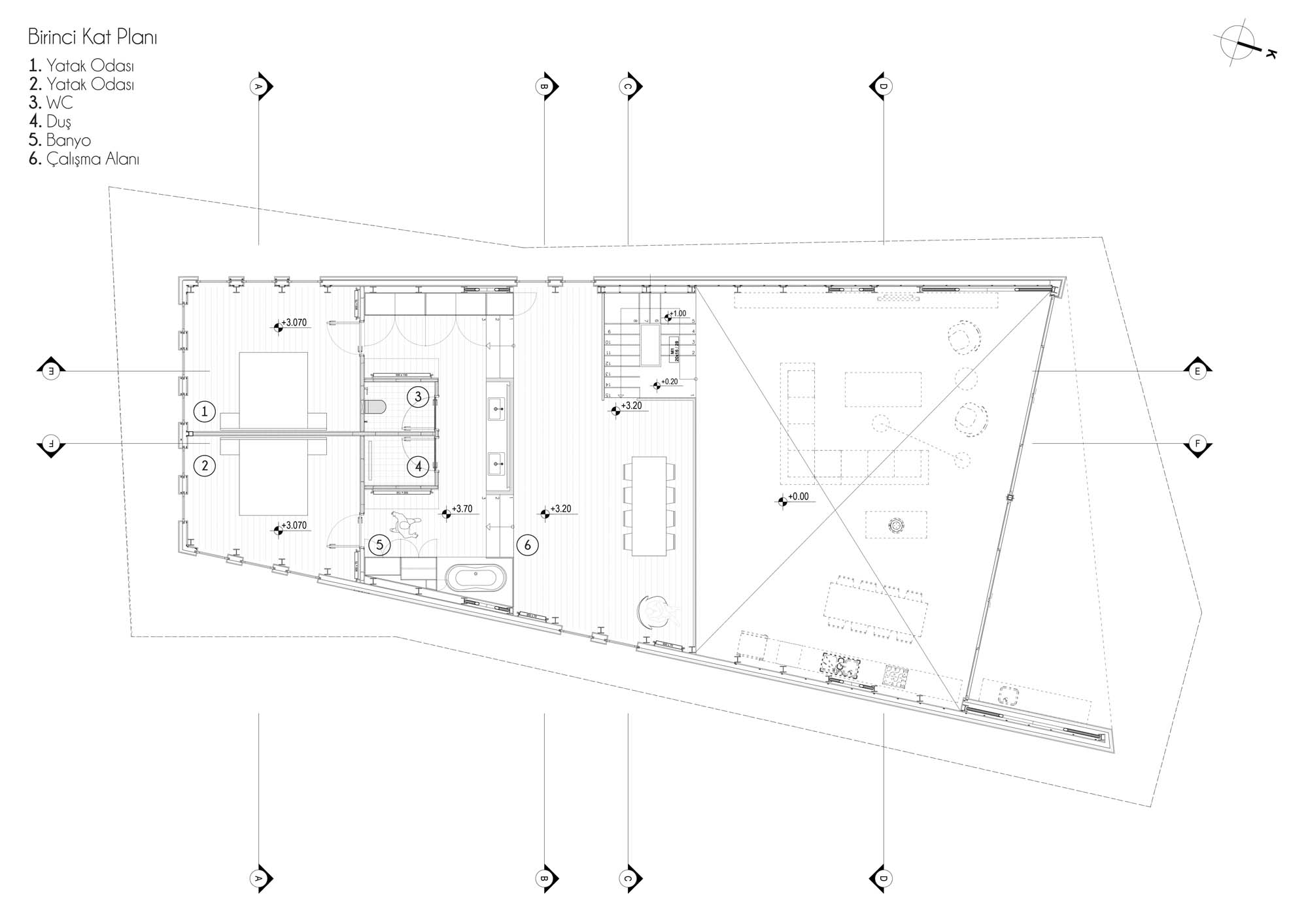
KA Evi
Proje Yeri: Erzincan
Proje Ofisi: Erginoğlu & Çalışlar Mimarlık
Proje Tipi: Tek Ev / Villa
Proje Tipi Grubu: Konut
Tasarım Ekibi: Hasan Çalışlar, Zeynep Şankaynağı, Duygu Uzunalı, Mustafa Tural
Ana Yüklenici: İbrahim Öztürk
Fotoğraf: Cemal Emden
Proje Başlangıç Yılı: 2013
Proje Bitiş Yılı: 2015
İnşaat Başlangıç Yılı: 2015
İnşaat Bitiş Yılı: 2016
Arsa Alanı: 30,000 m²
Toplam İnşaat Alanı: 468 m2