8/20
Paylaş
Resmi Orjinal Boyutunda Göster
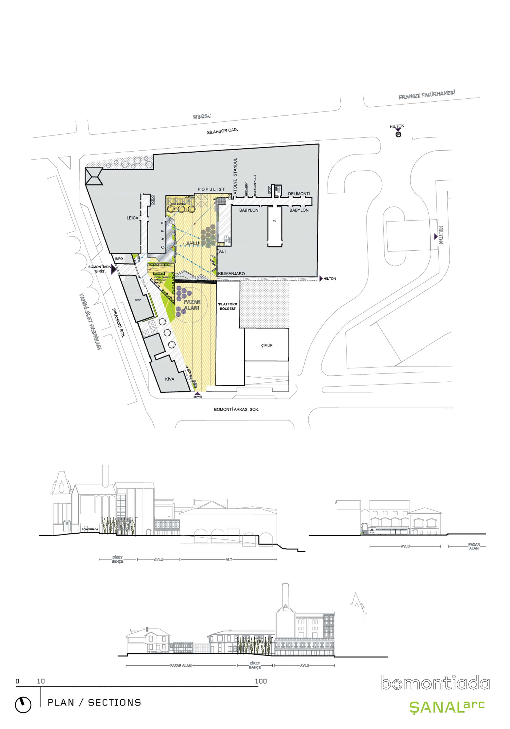
Bomontiada Ortak Alanlar
Project Location: İstanbul, Şişli
Project Office: SANALarc Mimarlık, Araştırma ve Kentsel Tasarım
Project Type: Urban Design
Proje Tipi Grubu: Kültür, Urban Design, Commercial
Tasarım Ekibi: Alexis Şanal, Murat Şanal
Employer: Bomonti Kültür Sanat A.Ş
Consultant: OBM, Arzu Nuhoğlu Peyzaj Tasarım, YBT
Yardımcı: Didem Sağlam, Begüm Öner, Ulufer Çelik, Burak Saatçioğlu, Bassil Taleb, Matyas Skardelli, Cibeles Sanchez
Ana Yüklenici: Işık Peyzaj
Alt Yüklenici: İnnova Mühendislik
Projcet Manager: OBM, Oğuz Bayazıt
Lighting Project: ZKLD Studio
Grafik Tasarım: FAI & ANAKARA
Structural Project: YBT, İntaç Mühendislik
Mechanical Project: Akım Mühendislik
Acoustic Consultant: Talayman Akustik
Fire Safety Consultant: Abdurrahman Kılıç
Model: DünyaKüçük
Photography: Sinem Serap Duran, Emre Dörter, İbrahim Özbunar, Selim Erdan, Yercekim Mimari Fotograf, Bomontiada
Architectural Supervision: SANALarc Mimarlık, Araştırma ve Kentsel Tasarım
Project Start Date: 2015
Project End Date: 2015
Construction Start Date: 2015
Construction End Date: 2016
Building Plot Area: 3,700 m2
Total Construction Area: 2,300 m²