17/21
Paylaş
Resmi Orjinal Boyutunda Göster
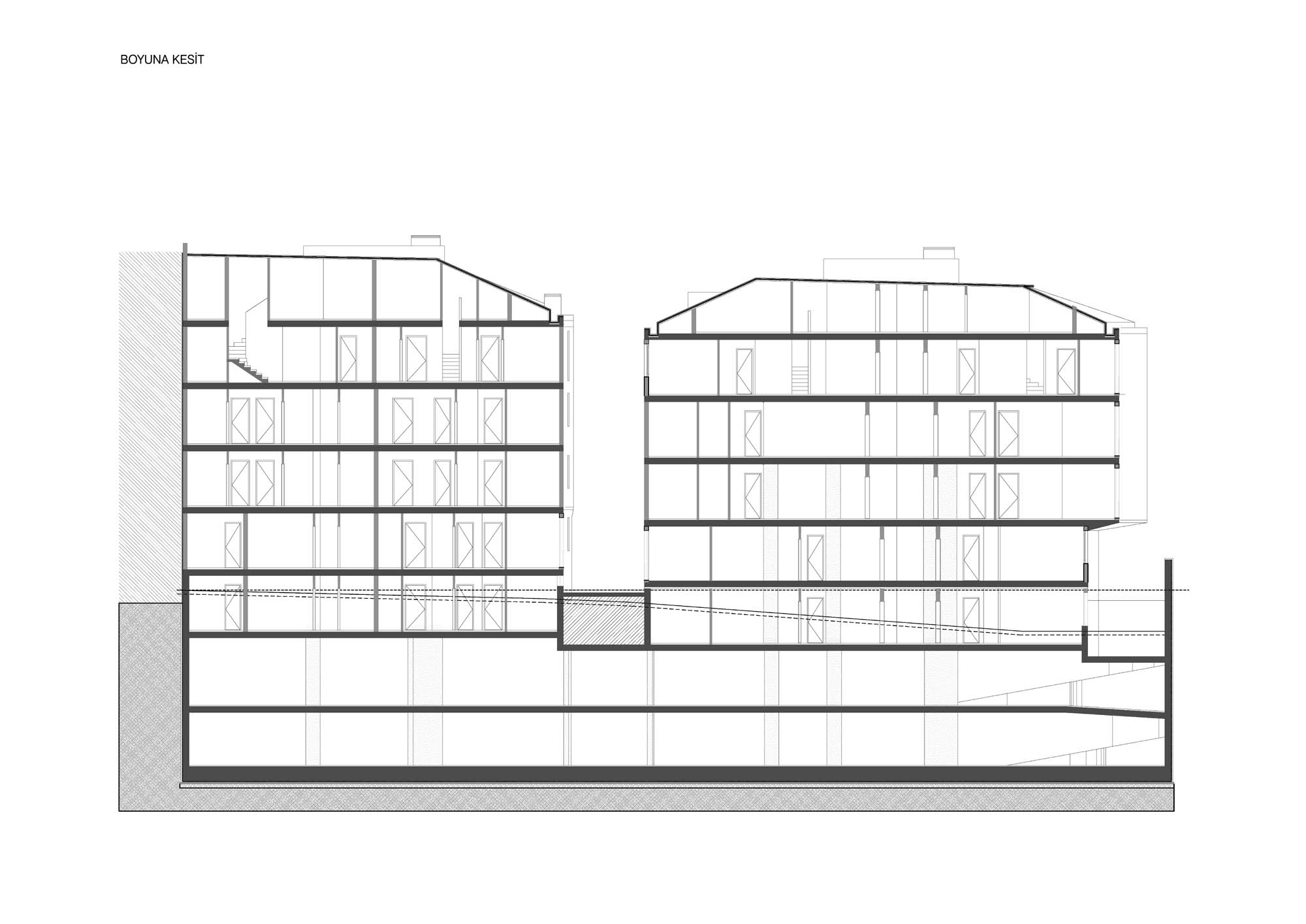
Ermiş Konutları
Proje Yeri: Eyüpsultan, İstanbul
Proje Ofisi: CM Mimarlık
Proje Tipi: Konut Sitesi / Grubu
Proje Tipi Grubu: Konut
Tasarım Ekibi: Cem Sorguç
Yardımcı: Çiğdem Yalırsu, Sezin Ergene, Gizem Candemir, Tolga Yağlı, Özlem Yılmaz
Ana Yüklenici: Ermiş Mobilya Dekorasyon
İç Mekan Projesi: Ermiş Mobilya Dekorasyon
Statik Projesi: Çizgi Mühendislik
Mekanik Projesi: Mak-El Mühendislik
Elektrik Projesi: Mak-El Mühendislik
Tesisat Projesi: Mak-El Mühendislik
Altyapı Projesi: Çizgi Mühendislik
Fotoğraf: Cemal Emden, Cem Sorguç
Proje Başlangıç Yılı: 2013
Proje Bitiş Yılı: 2014
İnşaat Başlangıç Yılı: 2014
İnşaat Bitiş Yılı: 2016
Arsa Alanı: 1,163 m²
Toplam İnşaat Alanı: 6,275 m²