5/5
Paylaş
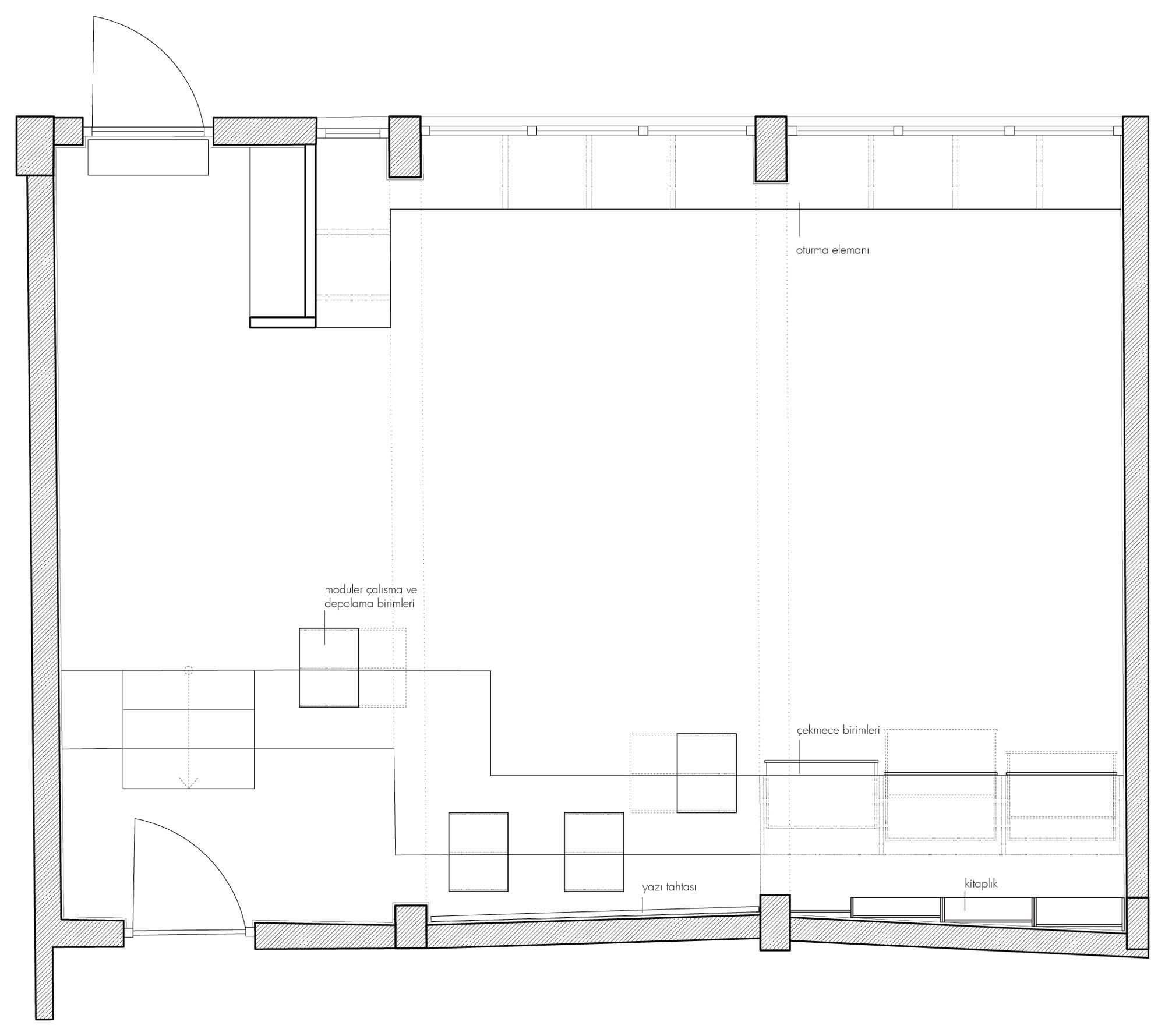
Resmi Orjinal Boyutunda Göster
Omnibus
Proje Yeri: Sarıyer, İstanbul
Proje Ofisi: MEF Üniversitesi, Tasarla ve Yap! Stüdyosu
Proje Tipi: İlkokul
Proje Tipi Grubu: Eğitim
Tasarım Ekibi: Elif Lahor, Miray Akbulut, Mehmet Eroğlu, İlayda Baydemir, Berfin Salebcioğlu, Gülfem Bayraktar, Öykü Beşer, Sami Yücel, Betül Çakmak, Aybike Şenkaya, Nagehan Taviloğlu
İşveren: Güney Kıldıran İlkokulu, Sarıyer Park ve Bahçeler Müdürlüğü
Ana Yüklenici: MEF Üniversitesi Sanat, Tasarım ve Mimarlık Fakültesi
Alt Yüklenici: DS Mimarlık, Sarıyer Belediyesi Fen İşleri Müdürlüğü
Proje Yöneticisi: Ahmet Sezgin, Hazal Seval
Fotoğraf: Ünal Emir Menteşe
Proje Başlangıç Yılı: 2016
Proje Bitiş Yılı: 2016
İnşaat Başlangıç Yılı: 2016
İnşaat Bitiş Yılı: 2016
Toplam İnşaat Alanı: 60 m²