17/18
Paylaş
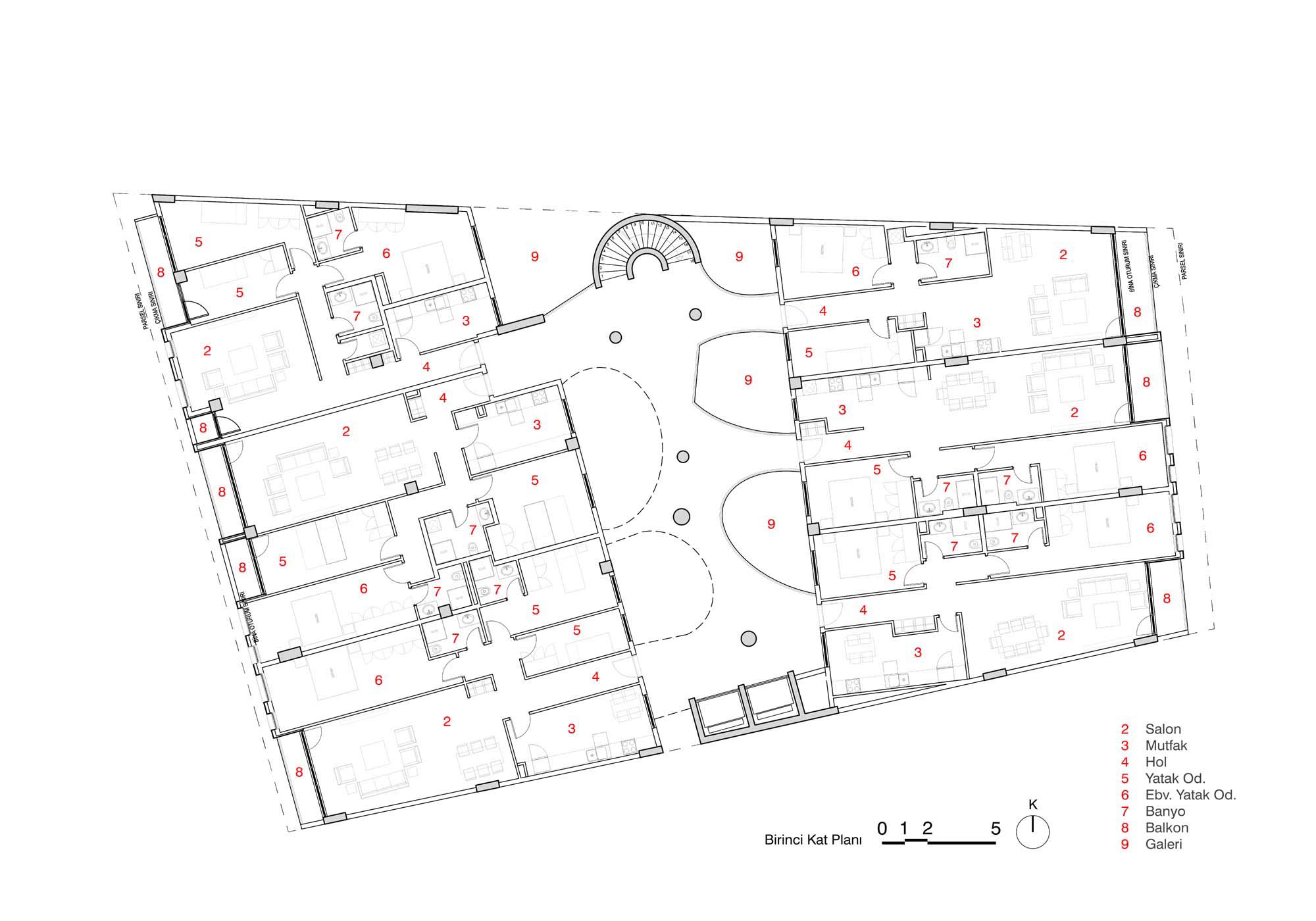
Resmi Orjinal Boyutunda Göster
GKT 110-7
Proje Yeri: Eyüpsultan, İstanbul
Proje Ofisi: CM Mimarlık
Proje Tipi: Apartman
Proje Tipi Grubu: Konut
Tasarım Ekibi: Cem Sorguç
İşveren: Akro Yapı, Uçar Gayrimenkul
Yardımcı: Sezin Ergene, Ege Adaş, Tolga Yağlı
Ana Yüklenici: Uçar Gayrimenkul
İç Mekan Projesi: Akro Yapı, Uçar Gayrimenkul
Statik Projesi: AYS Mühendislik
Mekanik Projesi: ÖZAK Mühendislik
Elektrik Projesi: Ahmet Mustafa Bozkır
Fotoğraf: Cem Sorguç
Proje Başlangıç Yılı: 2013
Proje Bitiş Yılı: 2014
İnşaat Başlangıç Yılı: 2014
İnşaat Bitiş Yılı: 2016
Arsa Alanı: 962 m²
Toplam İnşaat Alanı: 6,826 m²